Ce lot n’est plus disponible chez VIANOVA ou est vendu.
Vous pouvez revenir dans 24h pour vérifier le stock à jour ou contacter un conseiller Vianova pour vérifier le stock en direct.
Vous pouvez également continuer votre recherche sur notre site « ici ».
418 860€
- €
Appt. au 0-RDC
T2
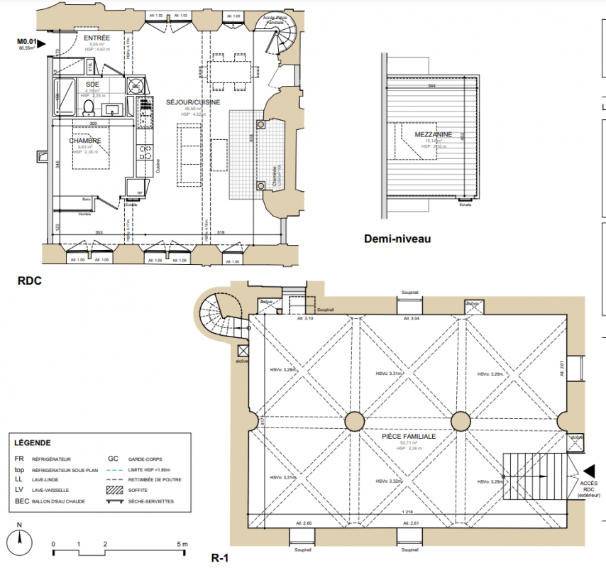
80.55 m²
-
Gonfreville-l'Orcher (76700)
2ème trimestre 2028
01 81 80 39 10
Présentation du programme "Le Manoir de Bévilliers - LE HAVRE"
GONFREVILLE L'ORCHER
Commune limitrophe du Havre, Gonfreville-l'Orcher est, jusqu'à la fin du XIXe siècle, un petit village doté d'usines importantes telles que la fonderie Bassot et la Corderie du Commerce, dans le hameau de Gournay-en- Caux. Aujourd'hui intégrée à Havre Seine Métropole, la ville bénéficie de la dynamique urbaine du Havre et conserve un environnement verdoyant recherché.
LE MANOIR DE BEVILLIERS, une architecture renaissance du XVIe siècle
Construit en même temps que la ville royale du Havre, le manoir de Bévillers est un très beau témoignage de l'architecture renaissance en Normandie.
Le Manoir est un lieu à vocation réceptive niché au cœur d'un parcours de golf.
Très peu modifié, il conserve encore aujourd'hui tous les codes du manoir renaissance : grandes baies en pierre à meneaux, de magnifiques cheminées sculptées, de beaux ornements…
Plusieurs de ses fenêtres comportent même des parties d'origine (elles ont donc près de 500 ans).
A PROXIMITE
Le manoir est situé à l'entrée du Havre et offre une facilité d'accès à la plus grande ville de Normandie et le premier port français pour l'approvisionnement énergétique, pour les vins et spiritueux et pour l'import export de véhicules neufs. L'économie du Havre repose depuis longtemps sur sa tradition ouvrière et maritime.
La ville a su se développer grâce à une politique urbaine dynamique et un maire très impliqué.
LA RENAISSANCE DU MANOIR
Situé à l'entrée du Havre, au cœur d'un terrain de golf 9 trous, le Manoir de Bévilliers, sera aménagé en 13 logements répartis sur 3 étages :
- RDC : 4 logements (1 studio, 2 deux pièces et 1 trois pièces)
- 1er étage : 4 logements ( 2 studios, 1 deux pièces et 1 trois pièces)
- 2ème étage : 5 logements (1 studio et 4 deux pièces)
- 3ème étage : 13 celliers
Le projet prévoit la restauration des parties communes, le traitement des intérieurs, les réseaux VRD et le traitement des façades et de la toiture.
L'ensemble immobilier permettra de redonn
Autres logements T2 du programme "Le Manoir de Bévilliers - LE HAVRE"
| Disponibilité | Prix | No | Genre | Pièces | Surface | Étage | Disponibilité | Prix | ||
|---|---|---|---|---|---|---|---|---|---|---|
| Voir | Disponible | 350 604€ | M2.03_ | Appt. | T2 | 51.74m2 | 2ème | Disponible | 350 604€ Prix foncier 20 696€ Prix travaux 297 505€ | Voir |
| Voir | Disponible | 329 875€ | M1.04_ | Appt. | T2 | 48.52m2 | 1er | Disponible | 329 875€ Prix foncier 18 923€ Prix travaux 278 990€ | Voir |
| Voir | Disponible | 309 986€ | M0.04_ | Appt. | T2 | 45.34m2 | 0-RDC | Disponible | 309 986€ Prix foncier 17 683€ Prix travaux 262 972€ | Voir |
| Voir | Disponible | 435 167€ | M0.01_ | Appt. | T2 | 65.41m2 | 0-RDC | Disponible | 435 167€ Prix foncier 26 164€ Prix travaux 372 837€ | Voir |