Ce lot n’est plus disponible chez VIANOVA ou est vendu.
Vous pouvez revenir dans 24h pour vérifier le stock à jour ou contacter un conseiller Vianova pour vérifier le stock en direct.
Vous pouvez également continuer votre recherche sur notre site « ici ».
216 029€
- €
Appt. au 1er
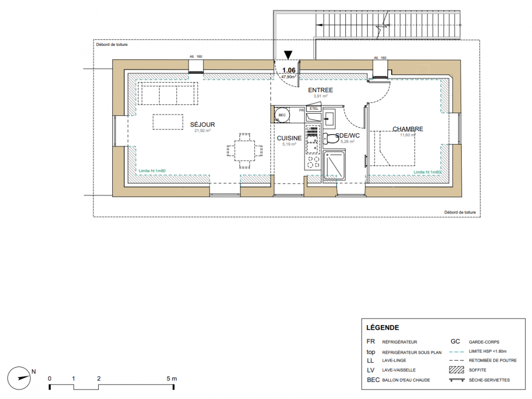
T2
54.65 m²
-
Pontoise (95300)
1er trimestre 2028
01 81 80 39 10
Présentation du programme "L'Ermitage"
PONTOISE : la ville
Située dans le département du Val-d’Oise en région Île-de-France, Pontoise est une ville connue pour son riche patrimoine historique et culturel, notamment son magnifique château de la Renaissance, ainsi que pour son ambiance chaleureuse, conviviale et dynamique.
Pontoise est en zone A et est éligible au Denormandie
Ville d’Art et d’Histoire
Autrefois, source d’inspiration pour le peintre impressionniste Camille Pissarro, cette ville d’Art et d’Histoire offre de belles vues sur l’eau et des bâtiments datant de l’époque médiévale, tels que la cathédrale Saint-Maclou et le château de Pontoise.
Un emplacement ideal
L’Ermitage est situé à environ 30 kilomètres au nord-ouest de Paris et est desservi par les lignes ferroviaires Transilien H et les lignes de RER A et C.
Il y a également des lignes de bus qui relient Pontoise à Paris et aux villes environnantes.
L'immeuble se trouve à quelques minutes à pieds du Lycée Privé Catholique Saint Martin de France, du campus Cergy Paris Université et à 15 mn à pieds de la très renommée école de commerce Essec.
Le centre commercial les 3 Fontaines se trouve à 10 mn de l'immeuble.
Le Projet de Restauration
L’Ermitage situé au 1, avenue de Verdun, fait partie actuellement du groupe scolaire Saint-Martin de France à Pontoise.
Ce bâtiment, situé à l'extrême Ouest de la parcelle, était inoccupé et abritait les logements des étudiants et du personnel.
Entouré d'un Espace Boisé Classé non constructible, il fait face à l'Oise qui coule en contrebas du foncier.
Le projet prévoit la restauration de l’ensemble du bâtiment en 21 appartements : 5 T1, 12 T2 et 4 T3, ainsi que de 35 places de stationnement, dont 2 PMR
Un local vélo prévu au sous-sol avec accès direct vers l’extérieur.
Chaque appartement est vendu avec une cave et une ou deux places de stationnement parfaitement intégrées dans l'espace boisé classé du domaine.
Afin de promouvoir l’art, Conserto s’est engagé dans la charte 1 immeuble, 1 œuvre, un programme du ministère de la Culture qui vise à diffuser des arts plastiques auprès du public le plus large. Pour cela, chaque société s’engage à exposer une œuvre d’un artiste dans chacun de ses bâtiments privés.
Visualisez la vidéo : Vidéo L'Ermitage
Eligible au Denormandie, Denormandie optimisé déficit foncier et déficit foncier
Autres logements T2 du programme "L'Ermitage"
| Disponibilité | Prix | No | Genre | Pièces | Surface | Étage | Disponibilité | Prix | ||
|---|---|---|---|---|---|---|---|---|---|---|
| Voir | Disponible | 324 709€ | 0.08_ | Appt. | T2 | 54.61m2 | 0-RDC | Disponible | 324 709€ Prix foncier 72 871€ Prix travaux 251 838€ | Voir |
| Voir | Optionné | 278 539€ | 1.06_ | Appt. | T2 | 54.65m2 | 1er | Optionné Mais pas encore vendu 😉 | 278 539€ Prix foncier 62 510€ Prix travaux 216 029€ | Voir |