Prix
370 000€
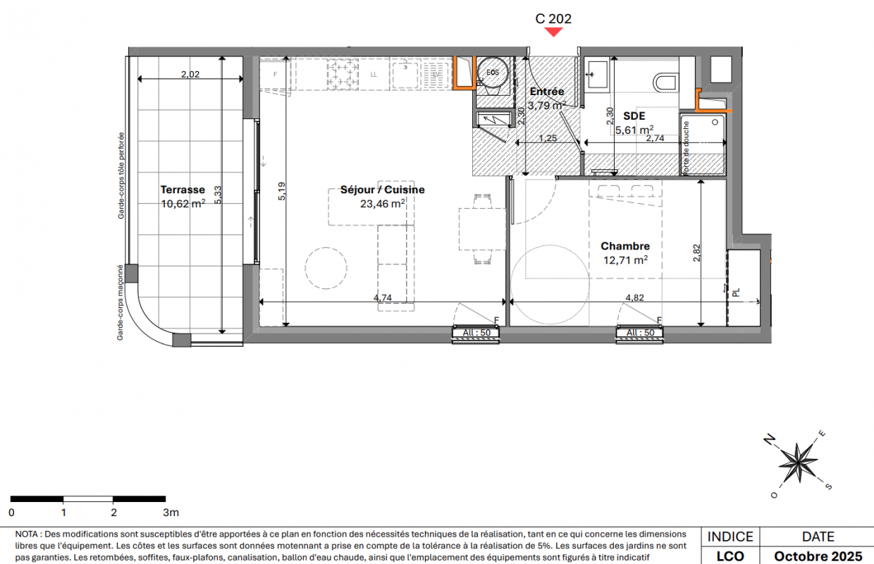
Type
Appt. au 0-RDC
Pièces
T2
Surface
46.15 m²
Exposition
-
Ville
Fréjus (83600)
Livraison
2ème trimestre 2028
Informations
01 81 80 39 10

Présentation du programme "Marina B - FREJUS"

Du studio au 4 pièces, les appartements de MARINA B allient esthétisme et confort. Leurs volumes bien pensés s'ouvrent sur de vastes extérieurs privés : terrasses, balcons ou jardins, offrant de belles vues dégagées.

Logements éligibles au Prêt à Taux Zéro (PTZ), sous réserve de remplir les conditions prévues par la réglementation.

Contactez-nous dès aujourd'hui pour découvrir en avant-première ces appartements d'exception.

Autres logements T2 du programme "Marina B - FREJUS"

Disponibilité Prix Genre Pièces Surface Étage
Voir
Disponible
360 000€ Appt. T2 46.15m2 0-RDC
DO NOT CLICK