Prix
170 616€
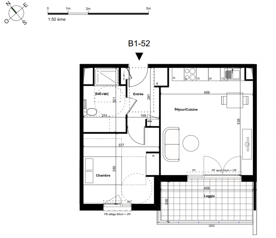
Type
Appt. au 5ème
Pièces
T2
Surface
48 m²
Exposition
-
Ville
Marseille 14ème (13014)
Livraison
4ème trimestre 2025
Informations
01 81 80 39 10

Présentation du programme "JARDIN EMY"

Pour cette nouvelle signature marseillaise, Vianova a sélectionné une adresse d’avenir à proximité directe du centre-ville, au sein du 14e arrondissement, au cœur d’un important projet de transformation urbaine.

Organisée autour d’un cœur d’îlot verdoyant et sillonnée par d’agréables chemins piétonniers, cette nouvelle résidence dévoile des appartements du studio au 4 pièces et des villas individuelles de 4 pièces, s’ouvrant tous sur de beaux espaces extérieurs.

De nombreux commerces, des établissements scolaires ainsi que des lignes de bus sont à quelques pas de la résidence. Parc, installations sportives et culturelles à moins de 15 minutes à pied, participent au bien-être de ses résidants.

Autres logements T2 du programme "JARDIN EMY"

Pas de logements disponibles
DO NOT CLICK