Prix
590 000€
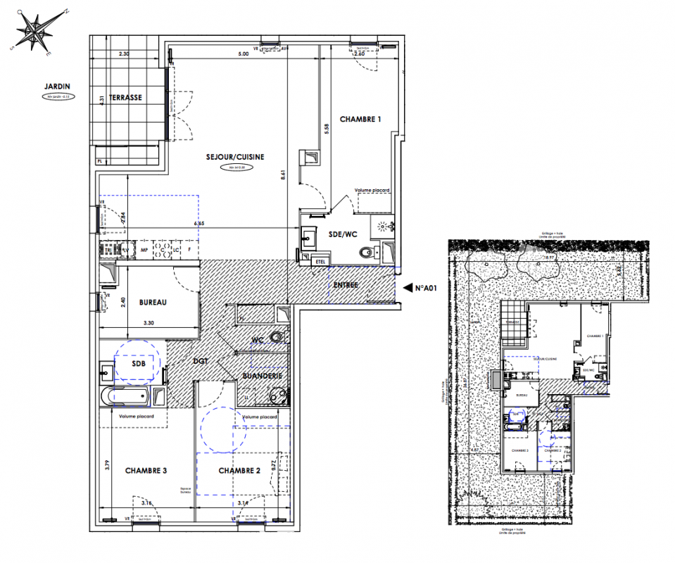
Type
Appt. au 0-RDC
Pièces
T4
Surface
115.7 m²
Exposition
Sud
Ville
La Ciotat (13600)
Livraison
3ème trimestre 2027
Informations
01 81 80 39 10

Présentation du programme "BAÏA AZUR"

Nichée dans un quartier paisible de La Ciotat, à moins de 10 minutes à vélo des plages et du centre historique, cette résidence neuve allie confort contemporain et élégance méditerranéenne. Son jardin luxuriant, ses proportions intimistes et ses toitures en tuiles patinées créent une atmosphère authentique et raffinée. Du 2 au 4 pièces, chaque appartement s'ouvre sur un généreux espace extérieur - balcon, jardin privatif ou majestueuse terrasse en attique. Les agencements fluides et les orientations soigneusement étudiées créent des intérieurs lumineux, aussi fonctionnels qu’harmonieux.

Profitez d’un quotidien privilégié entre azur et collines, à deux pas des écoles et commerces, dans cette cité balnéaire au patrimoine exceptionnel.

Autres logements T4 du programme "BAÏA AZUR"

Disponibilité Prix Genre Pièces Surface Étage
Voir
Optionné
700 000€ Appt. T4 108.3m2 3ème
DO NOT CLICK