Prix
2 220 000€
2 220 000€
Type
Appt. au 0-RDC
Appt. au 0-RDC
Pièces
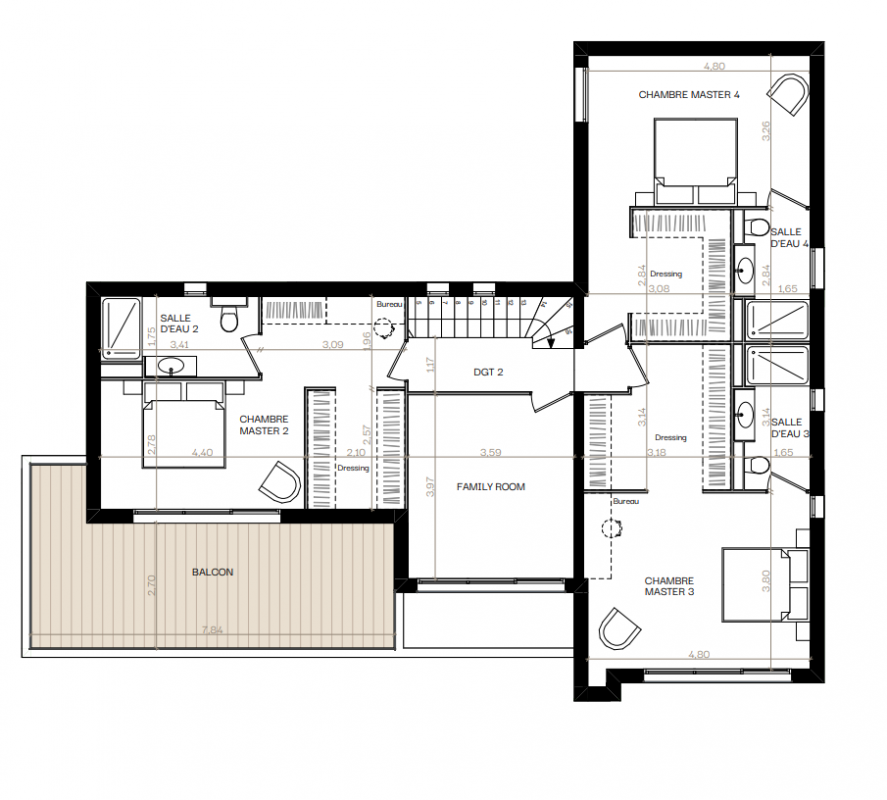
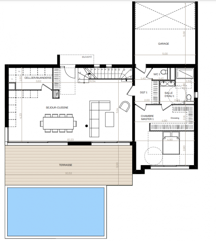
T6
T6
Surface
204.85 m²
204.85 m²
Exposition
-
-
Ville
Mougins (06250)
Mougins (06250)
Livraison
1er trimestre 2028
1er trimestre 2028
Informations
01 81 80 39 10
01 81 80 39 10
Présentation du programme "LES COSTES - DOMAINE PRIVE"
Programme neuf Mougins - 06250
Autres logements T6 du programme "LES COSTES - DOMAINE PRIVE"
| Disponibilité | Prix | No | Genre | Pièces | Surface | Étage | Disponibilité | Prix | ||
|---|---|---|---|---|---|---|---|---|---|---|
| Voir | Disponible | 2 320 000€ | V1 | Appt. | T6 | 216.5m2 | 0-RDC | Disponible | 2 320 000€ | Voir |
| Voir | Disponible | 2 245 000€ | V3 | Appt. | T6 | 204.7m2 | 0-RDC | Disponible | 2 245 000€ | Voir |
| Voir | Disponible | 2 970 000€ | V4 | Appt. | T6 | 279.2m2 | 0-RDC | Disponible | 2 970 000€ | Voir |


