214 900€
Appt. au 0-RDC
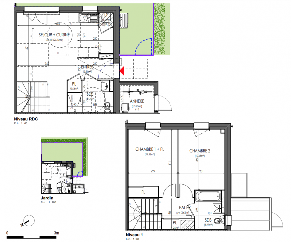
T3
62.66 m²
-
Saint-Sylvain-d'Anjou (49480)
2ème trimestre 2027
01 81 80 39 10
Présentation du programme "LE CLOS SAINT-SYLVAIN"
À seulement 8 minutes** en voiture d’Angers, Verrières-en-Anjou offre un cadre de vie privilégié entre dynamisme et sérénité. Intégrée à la communauté urbaine Angers Loire Métropole, cette commune bénéficie de tous les services et infrastructures d’une grande agglomération, tout en conservant le charme d’un environnement verdoyant et paisible. C’est une adresse idéale pour tous les style de vie, que ce soit pour réaliser son 1er achat, pour la famille qui s’agrandit et qui rêve de vivre en maison avec jardin tout en étant proche de tout !
Située rue du Chemineau, cette nouvelle résidence propose 30 logements aux prestations soignées. « LE CLOS SAINT-SYLVAIN » se compose de 4 maisons de plain-pied de 4 pièces, 8 Villas-Jardins de 3 pièces duplex, 9 Appartements-Jardins de plain-pied du 2 au 3 pièces et 9 appartements du 2 au 3 pièces au 1er étage. Chaque logement dispose d’un jardin privatif engazonné ou d’un balcon, de places de stationnement extérieures ainsi que d’un local à vélo commun, garantissant un quotidien pratique et agréable.