142 000€
Appt. au 0-RDC
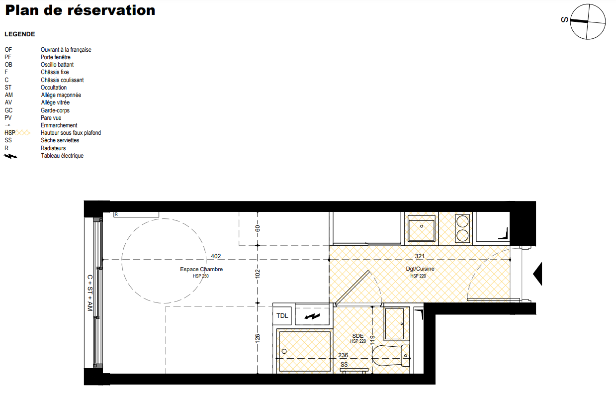
Studio
17.79 m²
-
Nantes (44000)
1er trimestre 2028
01 81 80 39 10
Présentation du programme "KLEEZI | ILE DE NANTES"
[ SPECIAL INVESTISSEMENT LOCATIF jusqu’à 4.92% de rentabilité* + OFFRE SPECIALE MOBILIER OFFERT**]
Investissez dans une résidence étudiante et jeunes actifs à fort potentiel, au cœur de l’Île de Nantes, l’un des quartiers les plus dynamiques de la métropole !
Avec Kleezi, découvrez un nouveau concept d’investissement locatif meublé clé en main, alliant rentabilité, liberté et sérénité.
Tout en étant propriétaire de votre logement, vous vous appuyez sur des professionnels de la gestion locative pour gérer le quotidien de votre investissement (recherche de locataires, gestion locative, garantie de loyers impayés et de vacance, et accompagnement fiscal personnalisé).
Une solution clé en main, conçue pour investir sans contrainte.
La résidence Kleezi – Île de Nantes profite d’un emplacement exceptionnel, face à la Loire à 150 m de l’école d’archi et 300m de la fac de médecine.
Les studios et T1 bis tous meublés et équipés et sont complétés par des espaces partagés : cuisine et salle commune, terrasse paysagée et laverie.
Un placement sûr et porteur sur un marché étudiant en pleine croissance, au sein d’une ville régulièrement classée parmi les meilleures de France pour étudier et investir.
Kleezi – investissez simple, serein et durable.
Contactez nos conseillers Lamotte à NANTES, ou rendez-vous sur notre site Vianova.fr, pour en savoir plus et profiter de cette opportunité d'investissement.
*Rentabilité annuelle de 4.92 % calculée sur le prix TTC hors mobilier.
** Voir les conditions sur la page mentions légales de notre site Vianova.fr
Autres logements Studio du programme "KLEEZI | ILE DE NANTES"
| Disponibilité | Prix | No | Genre | Pièces | Surface | Étage | Disponibilité | Prix | ||
|---|---|---|---|---|---|---|---|---|---|---|
| Voir | Disponible | 191 000€ | A001 | Appt. | Studio | 32.29m2 | 0-RDC | Disponible | 191 000€ | Voir |
| Voir | Disponible | 152 000€ | A002 | Appt. | Studio | 19.22m2 | 0-RDC | Disponible | 152 000€ | Voir |
| Voir | Disponible | 152 000€ | A003 | Appt. | Studio | 19.22m2 | 0-RDC | Disponible | 152 000€ | Voir |
| Voir | Disponible | 152 000€ | A004 | Appt. | Studio | 19.22m2 | 0-RDC | Disponible | 152 000€ | Voir |
| Voir | Disponible | 152 000€ | A005 | Appt. | Studio | 19.22m2 | 0-RDC | Disponible | 152 000€ | Voir |
| Voir | Disponible | 151 000€ | A101 | Appt. | Studio | 18.82m2 | 1er | Disponible | 151 000€ | Voir |
| Voir | Disponible | 155 000€ | A104 | Appt. | Studio | 19.47m2 | 1er | Disponible | 155 000€ | Voir |
| Voir | Disponible | 153 000€ | A106 | Appt. | Studio | 19.23m2 | 1er | Disponible | 153 000€ | Voir |
| Voir | Disponible | 150 000€ | A107 | Appt. | Studio | 18.82m2 | 1er | Disponible | 150 000€ | Voir |
| Voir | Disponible | 150 000€ | A108 | Appt. | Studio | 18.82m2 | 1er | Disponible | 150 000€ | Voir |
| Voir | Disponible | 150 000€ | A109 | Appt. | Studio | 18.82m2 | 1er | Disponible | 150 000€ | Voir |
| Voir | Disponible | 153 000€ | A110 | Appt. | Studio | 19.23m2 | 1er | Disponible | 153 000€ | Voir |
| Voir | Disponible | 153 000€ | A111 | Appt. | Studio | 19.23m2 | 1er | Disponible | 153 000€ | Voir |
| Voir | Disponible | 150 000€ | A112 | Appt. | Studio | 18.82m2 | 1er | Disponible | 150 000€ | Voir |
| Voir | Disponible | 170 000€ | A113 | Appt. | Studio | 28.33m2 | 1er | Disponible | 170 000€ | Voir |
| Voir | Disponible | 194 000€ | A114 | Appt. | Studio | 32.29m2 | 1er | Disponible | 194 000€ | Voir |
| Voir | Disponible | 155 000€ | A115 | Appt. | Studio | 19.23m2 | 1er | Disponible | 155 000€ | Voir |
| Voir | Disponible | 155 000€ | A116 | Appt. | Studio | 19.23m2 | 1er | Disponible | 155 000€ | Voir |
| Voir | Disponible | 155 000€ | A117 | Appt. | Studio | 19.23m2 | 1er | Disponible | 155 000€ | Voir |
| Voir | Disponible | 154 000€ | A118 | Appt. | Studio | 19.09m2 | 1er | Disponible | 154 000€ | Voir |
| Voir | Disponible | 169 000€ | A119 | Appt. | Studio | 22.8m2 | 1er | Disponible | 169 000€ | Voir |
| Voir | Disponible | 153 000€ | A201 | Appt. | Studio | 18.82m2 | 2ème | Disponible | 153 000€ | Voir |
| Voir | Disponible | 153 000€ | A202 | Appt. | Studio | 18.82m2 | 2ème | Disponible | 153 000€ | Voir |
| Voir | Disponible | 156 000€ | A204 | Appt. | Studio | 19.47m2 | 2ème | Disponible | 156 000€ | Voir |
| Voir | Disponible | 151 000€ | A209 | Appt. | Studio | 18.82m2 | 2ème | Disponible | 151 000€ | Voir |
| Voir | Disponible | 154 000€ | A210 | Appt. | Studio | 19.23m2 | 2ème | Disponible | 154 000€ | Voir |
| Voir | Disponible | 154 000€ | A211 | Appt. | Studio | 19.23m2 | 2ème | Disponible | 154 000€ | Voir |
| Voir | Disponible | 196 000€ | A214 | Appt. | Studio | 32.29m2 | 2ème | Disponible | 196 000€ | Voir |
| Voir | Disponible | 156 000€ | A215 | Appt. | Studio | 19.23m2 | 2ème | Disponible | 156 000€ | Voir |
| Voir | Disponible | 156 000€ | A216 | Appt. | Studio | 19.23m2 | 2ème | Disponible | 156 000€ | Voir |
| Voir | Disponible | 156 000€ | A217 | Appt. | Studio | 19.23m2 | 2ème | Disponible | 156 000€ | Voir |
| Voir | Disponible | 155 000€ | A218 | Appt. | Studio | 19.09m2 | 2ème | Disponible | 155 000€ | Voir |
| Voir | Disponible | 169 000€ | A219 | Appt. | Studio | 22.8m2 | 2ème | Disponible | 169 000€ | Voir |
| Voir | Disponible | 154 000€ | A301 | Appt. | Studio | 18.82m2 | 3ème | Disponible | 154 000€ | Voir |
| Voir | Disponible | 154 000€ | A302 | Appt. | Studio | 18.82m2 | 3ème | Disponible | 154 000€ | Voir |
| Voir | Disponible | 157 000€ | A304 | Appt. | Studio | 19.47m2 | 3ème | Disponible | 157 000€ | Voir |
| Voir | Disponible | 152 000€ | A306 | Appt. | Studio | 18.82m2 | 3ème | Disponible | 152 000€ | Voir |
| Voir | Disponible | 152 000€ | A307 | Appt. | Studio | 18.82m2 | 3ème | Disponible | 152 000€ | Voir |
| Voir | Disponible | 152 000€ | A308 | Appt. | Studio | 18.82m2 | 3ème | Disponible | 152 000€ | Voir |
| Voir | Disponible | 152 000€ | A309 | Appt. | Studio | 18.82m2 | 3ème | Disponible | 152 000€ | Voir |
| Voir | Disponible | 155 000€ | A310 | Appt. | Studio | 19.23m2 | 3ème | Disponible | 155 000€ | Voir |
| Voir | Disponible | 174 000€ | A311 | Appt. | Studio | 28.46m2 | 3ème | Disponible | 174 000€ | Voir |
| Voir | Disponible | 197 000€ | A312 | Appt. | Studio | 32.3m2 | 3ème | Disponible | 197 000€ | Voir |
| Voir | Disponible | 157 000€ | A313 | Appt. | Studio | 19.23m2 | 3ème | Disponible | 157 000€ | Voir |
| Voir | Disponible | 156 000€ | A314 | Appt. | Studio | 19.09m2 | 3ème | Disponible | 156 000€ | Voir |
| Voir | Disponible | 172 000€ | A315 | Appt. | Studio | 22.8m2 | 3ème | Disponible | 172 000€ | Voir |
| Voir | Disponible | 155 000€ | A401 | Appt. | Studio | 18.82m2 | 4ème | Disponible | 155 000€ | Voir |
| Voir | Disponible | 155 000€ | A402 | Appt. | Studio | 18.82m2 | 4ème | Disponible | 155 000€ | Voir |
| Voir | Disponible | 158 000€ | A404 | Appt. | Studio | 19.47m2 | 4ème | Disponible | 158 000€ | Voir |
| Voir | Disponible | 153 000€ | A408 | Appt. | Studio | 18.82m2 | 4ème | Disponible | 153 000€ | Voir |
| Voir | Disponible | 153 000€ | A409 | Appt. | Studio | 18.82m2 | 4ème | Disponible | 153 000€ | Voir |
| Voir | Disponible | 177 000€ | A410 | Appt. | Studio | 22.8m2 | 4ème | Disponible | 177 000€ | Voir |
| Voir | Disponible | 156 000€ | A501 | Appt. | Studio | 18.82m2 | 5ème | Disponible | 156 000€ | Voir |
| Voir | Disponible | 156 000€ | A502 | Appt. | Studio | 18.82m2 | 5ème | Disponible | 156 000€ | Voir |
| Voir | Disponible | 154 000€ | A503 | Appt. | Studio | 18.82m2 | 5ème | Disponible | 154 000€ | Voir |
| Voir | Disponible | 154 000€ | A504 | Appt. | Studio | 18.82m2 | 5ème | Disponible | 154 000€ | Voir |
| Voir | Disponible | 154 000€ | A505 | Appt. | Studio | 18.82m2 | 5ème | Disponible | 154 000€ | Voir |
| Voir | Disponible | 154 000€ | A506 | Appt. | Studio | 18.82m2 | 5ème | Disponible | 154 000€ | Voir |
| Voir | Disponible | 178 000€ | A507 | Appt. | Studio | 22.8m2 | 5ème | Disponible | 178 000€ | Voir |
| Voir | Disponible | 151 000€ | B001 | Appt. | Studio | 19.33m2 | 0-RDC | Disponible | 151 000€ | Voir |
| Voir | Disponible | 151 000€ | B002 | Appt. | Studio | 19.33m2 | 0-RDC | Disponible | 151 000€ | Voir |
| Voir | Disponible | 151 000€ | B005 | Appt. | Studio | 19.33m2 | 0-RDC | Disponible | 151 000€ | Voir |
| Voir | Disponible | 151 000€ | B006 | Appt. | Studio | 19.05m2 | 0-RDC | Disponible | 151 000€ | Voir |
| Voir | Disponible | 142 000€ | B008 | Appt. | Studio | 17.79m2 | 0-RDC | Disponible | 142 000€ | Voir |
| Voir | Disponible | 142 000€ | B009 | Appt. | Studio | 17.79m2 | 0-RDC | Disponible | 142 000€ | Voir |
| Voir | Disponible | 142 000€ | B010 | Appt. | Studio | 17.79m2 | 0-RDC | Disponible | 142 000€ | Voir |
| Voir | Disponible | 151 000€ | B011 | Appt. | Studio | 19.05m2 | 0-RDC | Disponible | 151 000€ | Voir |
| Voir | Disponible | 153 000€ | B104 | Appt. | Studio | 19.33m2 | 1er | Disponible | 153 000€ | Voir |
| Voir | Disponible | 153 000€ | B105 | Appt. | Studio | 19.05m2 | 1er | Disponible | 153 000€ | Voir |
| Voir | Disponible | 143 000€ | B106 | Appt. | Studio | 17.79m2 | 1er | Disponible | 143 000€ | Voir |
| Voir | Disponible | 153 000€ | B108 | Appt. | Studio | 19.05m2 | 1er | Disponible | 153 000€ | Voir |
| Voir | Disponible | 152 000€ | B109 | Appt. | Studio | 19.05m2 | 1er | Disponible | 152 000€ | Voir |
| Voir | Disponible | 154 000€ | B202 | Appt. | Studio | 19.33m2 | 2ème | Disponible | 154 000€ | Voir |
| Voir | Disponible | 154 000€ | B203 | Appt. | Studio | 19.35m2 | 2ème | Disponible | 154 000€ | Voir |
| Voir | Disponible | 153 000€ | B204 | Appt. | Studio | 19.05m2 | 2ème | Disponible | 153 000€ | Voir |
| Voir | Disponible | 153 000€ | B205 | Appt. | Studio | 19.05m2 | 2ème | Disponible | 153 000€ | Voir |
| Voir | Disponible | 153 000€ | B206 | Appt. | Studio | 19.05m2 | 2ème | Disponible | 153 000€ | Voir |