171 900€
187 500€
- €
187 500€
- €
Type
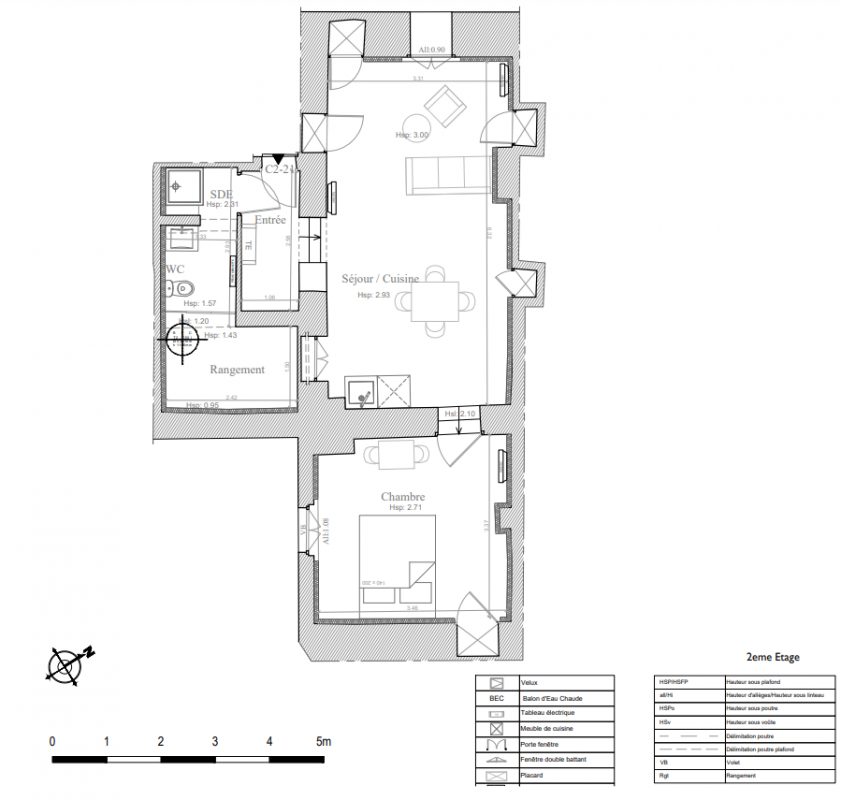
Appt. au 2ème
Appt. au 2ème
Pièces
T2
T2
Surface
38.91 m²
38.91 m²
Exposition
-
-
Ville
Montpellier (34000)
Montpellier (34000)
Livraison
1er trimestre 2026
1er trimestre 2026
Informations
01 81 80 39 10
01 81 80 39 10
Présentation du programme "CLOS DE LA MERCI"
Au cœur du quartier le plus convoité de Montpellier, le CLOS DE LA MERCI est un véritable lieu de vie. Le projet de réhabilitation, permettra la création de 79 appartements allant du studio au deux pièces.