Ce lot n’est plus disponible chez VIANOVA ou est vendu.
Vous pouvez revenir dans 24h pour vérifier le stock à jour ou contacter un conseiller Vianova pour vérifier le stock en direct.
Vous pouvez également continuer votre recherche sur notre site « ici ».
300 000€
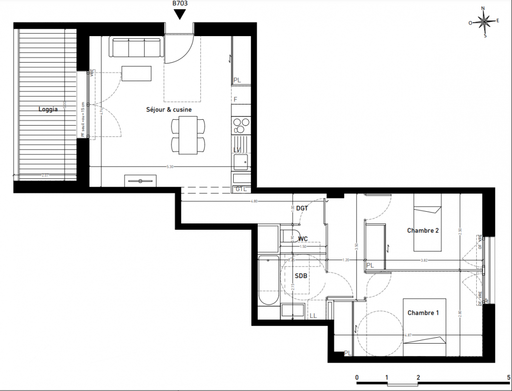
Appt. au 0-RDC
T3
63.7 m²
-
Toulouse (31000)
4ème trimestre 2028
01 81 80 39 10
Présentation du programme "Lisière du parc"
Lisière du parc, une résidence d’appartements neufs au cœur du quartier de la Cartoucherie à Toulouse
Implanté dans le quartier emblématique et en plein essor de la Cartoucherie, à l’ouest du centre-ville de Toulouse, la résidence Lisière du parc bénéficie d’un emplacement particulièrement qualitatif, au sein d’un environnement urbain dynamique, verdoyant et connecté.
Le quartier de la Cartoucherie est aujourd’hui reconnu pour son cadre de vie attractif, mêlant logements, espaces verts, équipements culturels et pôles de loisirs. À proximité immédiate, les résidents bénéficient de commerces de proximité, de services, d’établissements scolaires, de lieux culturels et sportifs, ainsi que de nombreux espaces de détente.
Développée en copromotion par Vianova et Nexity, la résidence se compose de deux bâtiments, dont l’un s’élève sur 8 étages et l’autre sur 16 étages, offrant de grandes hauteurs et permettant de profiter de vues dégagées et très qualitatives, notamment sur le futur parc aménagé à proximité.
Les logements, du studio au 4 pièces sont conçus pour offrir un confort de vie optimal. Ils bénéficient majoritairement de configurations traversantes ou en double orientation, favorisant la luminosité naturelle, la ventilation et des ambiances intérieures agréables tout au long de la journée. La plupart des appartements disposent également de prolongements extérieurs tels que balcons, terrasses ou jardins privatifs.
Pensée dans une démarche de qualité et de durabilité, la résidence s’intègre harmonieusement dans son environnement et répond aux exigences actuelles en matière de performance énergétique et de bien-être résidentiel.
La résidence profite également d’une excellente desserte en transports en commun, avec le tramway accessible à pied, permettant de rejoindre rapidement le centre-ville de Toulouse et les principaux pôles d’activité de la métropole.
La résidence Lisière du parc s’impose comme une opportunité rare pour habiter ou investir dans l’un des quartiers les plus prisés et prometteurs de Toulouse.
Autres logements T3 du programme "Lisière du parc"
| Disponibilité | Prix | No | Genre | Pièces | Surface | Étage | Disponibilité | Prix | ||
|---|---|---|---|---|---|---|---|---|---|---|
| Voir | Disponible | 288 000€ | B303 | Appt. | T3 | 63.7m2 | 0-RDC | Disponible | 288 000€ | Voir |
| Voir | Disponible | 282 000€ | B103 | Appt. | T3 | 63.7m2 Le bon plan | 0-RDC | Disponible | 282 000€ | Voir |
| Voir | Disponible | 294 000€ | B503 | Appt. | T3 | 63.7m2 | 0-RDC | Disponible | 294 000€ | Voir |