Prix
259 000€
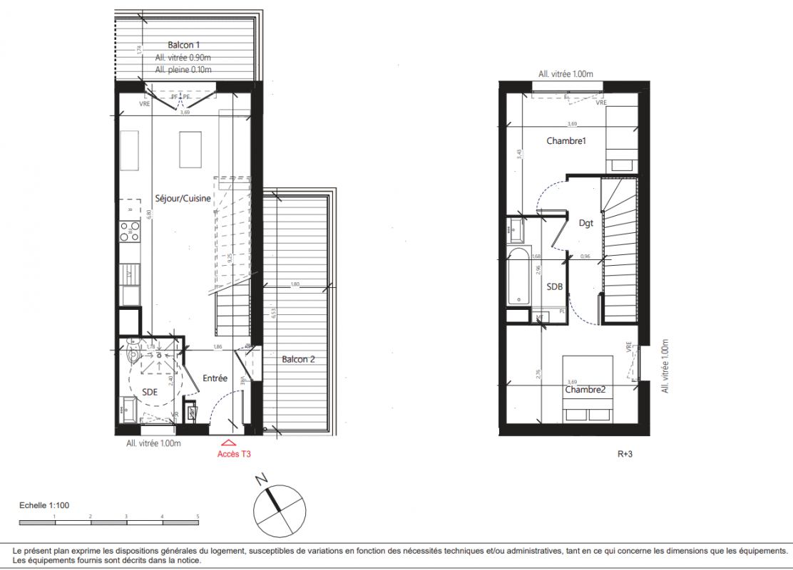
Type
Appt. au 2ème
Pièces
T3
Surface
59 m²
Exposition
Nord-Est
Ville
Toulouse (31000)
Livraison
2ème trimestre 2025
Informations
01 81 80 39 10

Présentation du programme "LE PARC DU FAUBOURG"

La résidence Parc du Faubourg est située dans le faubourg Malepère à Toulouse. Espaces verts, grandes terrasses ou balcons c'est la résidence idéale pour profiter du calme et de la verdure du Parc de la Marcaissonne tout en étant à proximité de toutes les commodités ! La résidence propose des appartements de standing avec de grandes surfaces. Idéal pour acheter ou investir en Pinel (éligible Pinel +). Le Faubourg Malepère est situé au carrefour de Labège, Saint-Orens et Toulouse, proche des pôles d'activités majeurs au coeur du très attractif sud-est Toulousain. La demande de logements y est élevée. UNE SITUATION PRIVILEGIEE - Accès direct à la rocade - Pistes cyclables. Pour toutes informations complémentaires, prenez contact avec nous !

Autres logements T3 du programme "LE PARC DU FAUBOURG"

Pas de logements disponibles
DO NOT CLICK