Prix
319 900€
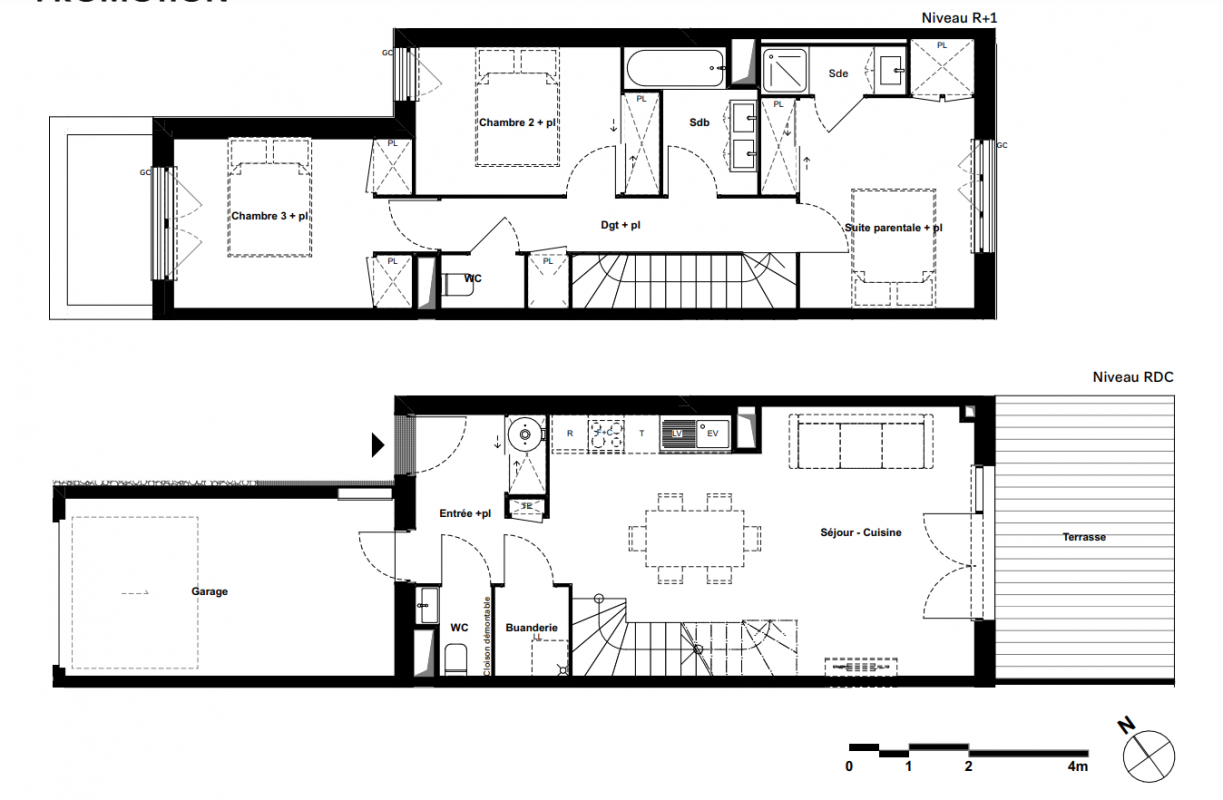
Type
Appt. au 0-RDC
Pièces
T4
Surface
84.56 m²
Exposition
-
Ville
Saint-Jean (31240)
Livraison
4ème trimestre 2027
Informations
01 81 80 39 10

Présentation du programme "VILLAS ROSEAUX"

VILLAS ROSEAUX est une résidence à taille humaine composée de 10 villas T4 duplex avec garage. Elle adopte une écriture architecturale traditionnelle, favorisant une intégration douce et naturelle dans son environnement. Les villas arborent des façades en brique,
alternant pose horizontale et verticale, associées à des enduits minéraux aux teintes beige. Chaque villa bénéficie d’une terrasse ouverte sur un jardin privatif, offrant un véritable espace de vie extérieur pour savourer pleinement les journées ensoleillées et partager des moments conviviaux en famille ou entre amis.
Nichée au coeur d’un quartier pavillonnaire verdoyant, la résidence s’inscrit dans un cadre où la nature est omniprésente, entre le lac et le bois de Preissac.

Autres logements T4 du programme "VILLAS ROSEAUX"

Disponibilité Prix Genre Pièces Surface Étage
Voir
Disponible
316 900€ Appt. T4 84.52m2 0-RDC
Voir
Optionné
309 900€ Appt. T4 84.24m2 0-RDC
Voir
Disponible
318 900€ Appt. T4 83.44m2 0-RDC
Voir
Disponible
318 900€ Appt. T4 84.21m2 0-RDC
DO NOT CLICK