Prix
385 000€
385 000€
Type
Appt. au 6ème
Appt. au 6ème
Pièces
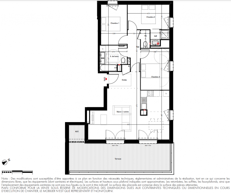
T4
T4
Surface
87 m²
87 m²
Exposition
Est
Est
Ville
Quint-Fonsegrives (31130)
Quint-Fonsegrives (31130)
Livraison
3ème trimestre 2026
3ème trimestre 2026
Informations
01 81 80 39 10
01 81 80 39 10
Présentation du programme "Villa Kiana"
Eligible Pinel + ! Profitez d'un emplacement privilégié aux portes de ToulouseDans l'une des villes les plus recherchées de la métropole toulousaine, au sein d'un ilot de verdure, la résidence propose des appartements du 2 au 4 pièces bénéficiant tous d'un jardin, balcon ou terrasse. UNE SITUATION PRIVILEGIEE à proximité des principaux bassins d'emplois de l'Est toulousain - Accès direct à la rocade - Pistes cyclables.