Prix
299 900€
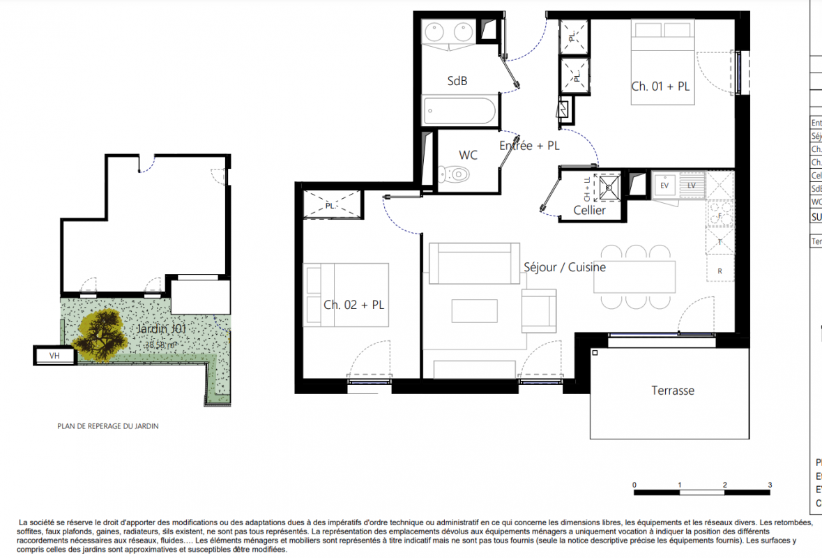
Type
Appt. au 0-RDC
Pièces
T3
Surface
60.15 m²
Exposition
Sud-Est
Ville
Blagnac (31700)
Livraison
3ème trimestre 2027
Informations
01 81 80 39 10

Présentation du programme "VOLTIGE"

Située à l’angle de la route de Grenade et de l’impasse des Flandres, la résidence VOLTIGE se compose de 38 appartements du T2 au T5, répartis dans 2 bâtiments en R+3 + Attique.
L'architecture se veut sobre et contemporaine pour s’intégrer parfaitement dans l’environnement urbain.
Les appartements possèdent tous un espace extérieur : jardins en rez-de-chaussée, balcons et loggias aux étages supérieurs, ou larges terrasses en attique.
Un espace vert commun prend place en cœur d'îlot, au milieu des deux bâtiments. Il est favorable aux échanges entre voisins ou amis, permettant ainsi de créer de beaux moments de convivialité. Ce jardin est aussi le support d’une biodiversité riche et observable par les habitants avec des nids à insectes, des mangeoires et refuges pour la petite faune, un composteur collectif...
Les stationnements sont prévus en rez-de-chaussée du bâtiment A et en sous-sol sous les deux bâtiments.

Autres logements T3 du programme "VOLTIGE"

Disponibilité Prix Genre Pièces Surface Étage
Voir
Disponible
315 900€ Appt. T3 63.65m2 3ème
DO NOT CLICK