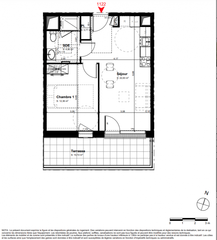
Prix
162 477€
Type
Appt. au 1er
Pièces
T2
Surface
40.66 m²
Exposition
Sud
Ville
Buxerolles (86180)
Livraison
4ème trimestre 2026
Informations
01 81 80 39 10

Présentation du programme "DOLCE VITA"

La résidence DOLCE VITA est pensée pour offrir une « douceur de vie » optimale. Son bâtiment en R+3 intègre 83 appartements T2. Chaque logement est doté d’un espace extérieur. Les espaces verts ont été étudiés pour être respectueux de la faune et bordent la résidence pour servir de lieu de détente et de rencontre.

Autres logements T2 du programme "DOLCE VITA"

Disponibilité Prix Genre Pièces Surface Étage
Voir
Optionné
175 544€ Appt. T2 43.88m2 2ème
DO NOT CLICK