Prix
202 000€
Type
Appt. au 1er
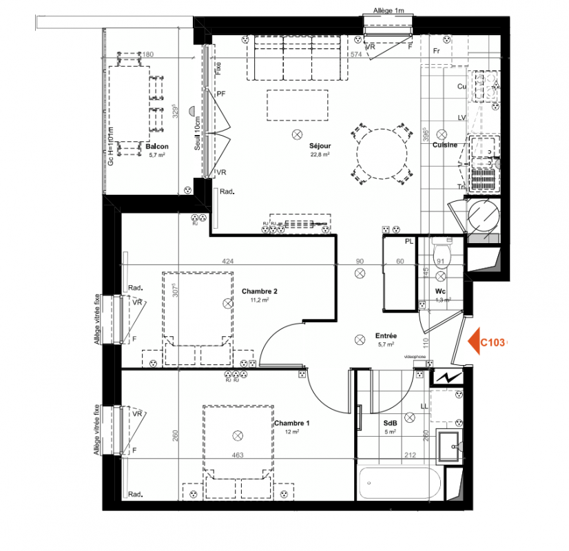
Pièces
T3
Surface
58 m²
Exposition
Ouest
Ville
Saint-Paul-lès-Dax (40990)
Livraison
1er trimestre 2027
Informations
01 81 80 39 10

Présentation du programme "TCHANKA"

À quelques pas des célèbres centres thermaux de Saint-Paul-lès-Dax, votre nouvelle résidence ouvre ses portes dans un cadre de vie privilégié, implantée au cœur d'un quartier résidentiel.

Vous bénéficierez d’un quotidien facilité avec la proximité des commerces, des établissements scolaires et des transports en commun avec la ligne de bus 1, assurant une liaison rapide avec les principaux points d'intérêt de la ville.
Elle se trouve également à 8 minutes de la gare SNCF de Dax (desservie par la ligne Bordeaux- Hendaye) et à 10 minutes de l’A63, ce qui permet un accès rapide à toutes les attractions de la région.

Cette nouvelle réalisation s'intègre harmonieusement dans son environnement grâce à une architecture respectueuse de la tradition landaise et à des espaces communs végétalisés.
Elle dévoile des appartements allant du 2 au 3 pièces et des maisons 3 pièces aux agencements soignés et variés tous prolongés par des jardins, balcons ou des terrasses privatives, pour un confort de vie optimal.

Ces logements se destinent aussi bien à de l’accession que pour un investissement LMNP.

Autres logements T3 du programme "TCHANKA"

Disponibilité Prix Genre Pièces Surface Étage
Voir
Optionné
202 000€ Appt. T3 58.2m2 1er
Voir
Disponible
208 000€ Appt. T3 58m2 0-RDC
DO NOT CLICK