Prix
149 000€
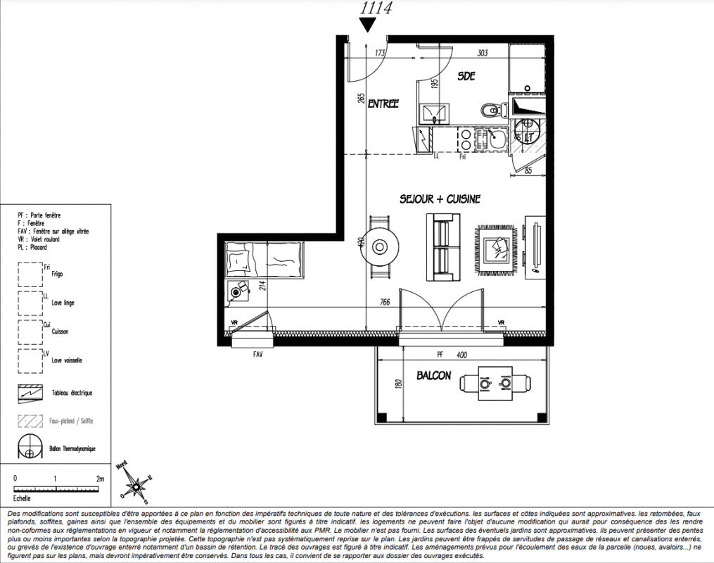
Type
Appt. au 1er
Pièces
Studio
Surface
37 m²
Exposition
Sud
Ville
Aureilhan (40200)
Livraison
3ème trimestre 2027
Informations
01 81 80 39 10

Présentation du programme "AUREA"

Découvrez AUREA, une nouvelle résidence élégante et moderne située à proximité immédiate du magnifique lac de Mimizan et à quelques minutes seulement des plages de l'Atlantique. Du Studio au 4 pièces, chaque appartement à été pensé pour allier bien-être et fonctionnalité. Les studio incluent une chambre cabine, idéale pour optimiser l'espace et accueillir famille et amis dans un cadre chaleureux. Nichée entre le lac, la forêt landaise et l'océan, AUREA offre un cadre idyllique pour les amateurs de nature et de détente tout en étant a proximité immédiate de la jolie commune de Mimizan. Cette résidence neuve vous offre l'opportunité d'investir dans un lieu d'exception. Que ce soit un pied-à-terre au bord de l'océan, un investissement locatif attractif ou votre résidence principale, cette résidence est l'opportunité parfaite pour conjuguer plaisir, confort et rentabilité. Pour toutes informations complémentaires, prenez contact avec nous !

Autres logements Studio du programme "AUREA"

Disponibilité Prix Genre Pièces Surface Étage
Voir
Disponible
145 000€ Appt. Studio 35m2 1er
Voir
Disponible
135 000€ Appt. Studio 35m2 1er
DO NOT CLICK