Prix
200 000€
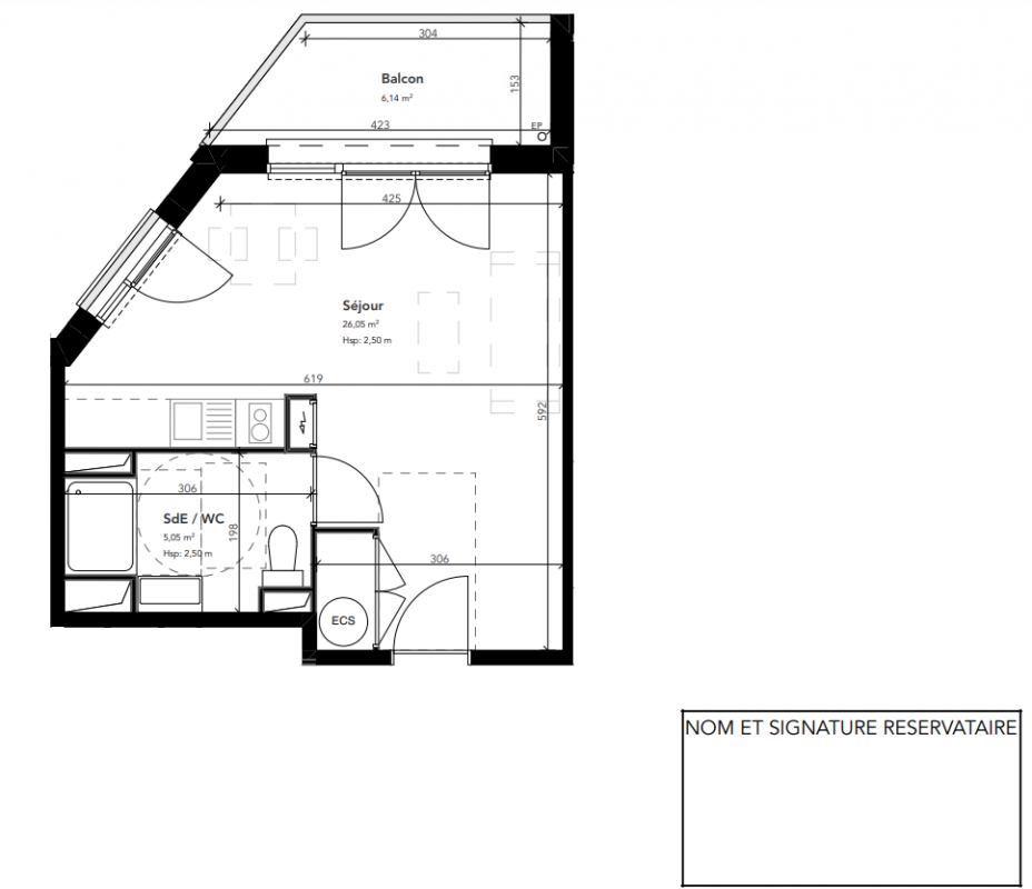
Type
Appt. au 1er
Pièces
Studio
Surface
30.96 m²
Exposition
-
Ville
Mérignac (33700)
Livraison
1er trimestre 2028
Informations
01 81 80 39 10

Présentation du programme "MAGNOLIA"


Parquet pour les pièces sèches
Carrelage grand format pour les pièces humides
Bac à douche extra plat et WC suspendus
Double hauteur pour un séjour cathédrale dans les maisons
PAC air/air pour les maisons
Volets roulants électriques
Jusqu’à 100m² de terrasse pour les appartements
Jusqu’à 600m² de jardin pour les maisons

Autres logements Studio du programme "MAGNOLIA"

Disponibilité Prix Genre Pièces Surface Étage
Voir
Disponible
190 000€ Appt. Studio 30.96m2 0-RDC
Voir
Disponible
205 000€ Appt. Studio 30.96m2 2ème
Voir
Disponible
200 000€ Appt. Studio 30.86m2 2ème
DO NOT CLICK