Prix
410 000€
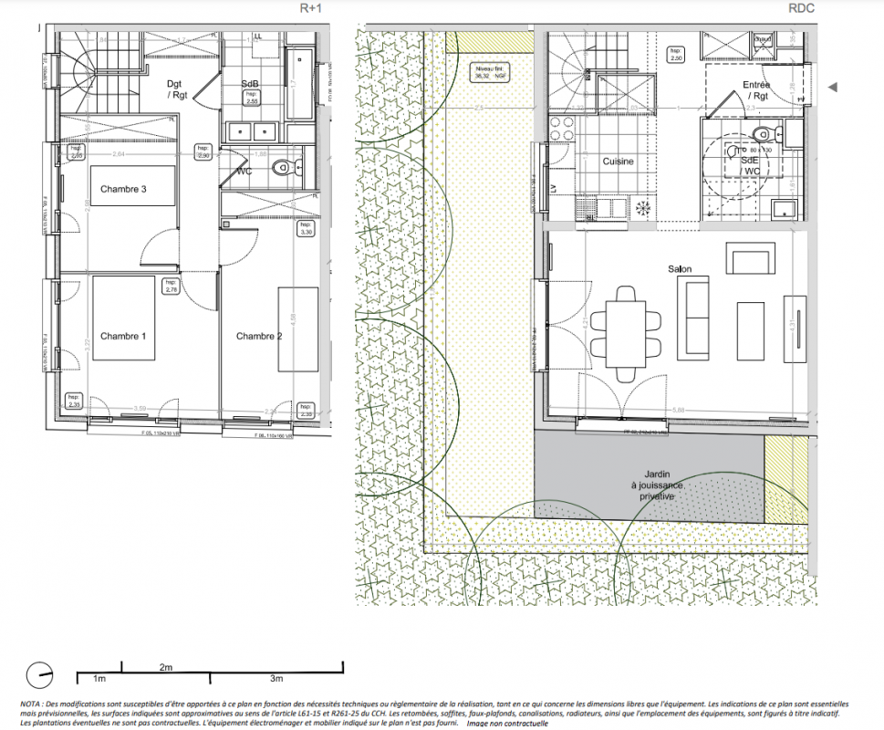
Type
Appt. au 0-RDC
Pièces
T4
Surface
91.05 m²
Le bon plan
Exposition
-
Ville
Mérignac (33700)
Livraison
4ème trimestre 2027
Informations
01 81 80 39 10

Présentation du programme "HEDERA"

• 9 appartements du 2 au 3 pièces, dont certains en duplex avec mezzanine, pour une surface de vie évolutive ;
• 7 maisons familiales de 4 pièces avec jardin privatif, terrasse et agencement fonctionnel.
Chaque logement bénéficie d'une ou deux ouvertures sur l'extérieur (balcon, terrasse, loggia ou jardin), d'une entrée privative et de prestations durables : parquet stratifié, finitions soignées, équipements de qualité.

Le projet privilégie les mobilités douces avec :
• Voie réservée aux riverains et stationnement en sous-sol,
• Proximité immédiate des écoles, commerces, équipements sportifs, et transports (bus, tram, vélo en libre-service).
Vous profitez ainsi d'un quartier calme et végétalisé, idéal pour les familles comme pour les jeunes actifs en quête de confort urbain.

Autres logements T4 du programme "HEDERA"

Disponibilité Prix Genre Pièces Surface Étage
Voir
Disponible
365 000€ Appt. T4 80.57m2 0-RDC
Voir
Disponible
385 000€ Maison T4 85.59m2 0-RDC
Voir
Disponible
370 000€ Appt. T4 85.87m2 0-RDC
DO NOT CLICK