275 000€
Appt. au 2ème
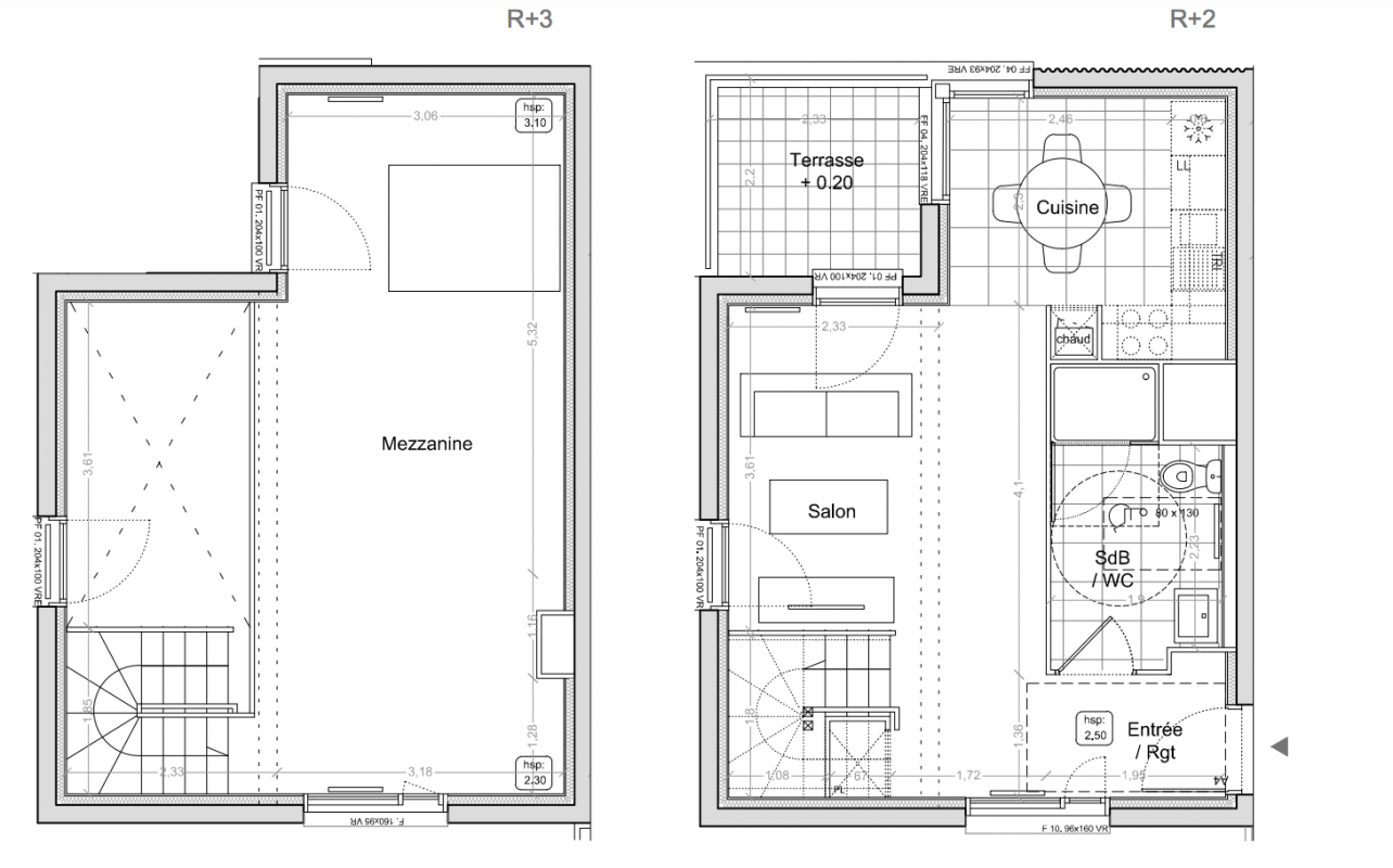
T2
57.92 m²
-
Mérignac (33700)
4ème trimestre 2027
01 81 80 39 10
Présentation du programme "HEDERA"
• 9 appartements du 2 au 3 pièces, dont certains en duplex avec mezzanine, pour une surface de vie évolutive ;
• 7 maisons familiales de 4 pièces avec jardin privatif, terrasse et agencement fonctionnel.
Chaque logement bénéficie d'une ou deux ouvertures sur l'extérieur (balcon, terrasse, loggia ou jardin), d'une entrée privative et de prestations durables : parquet stratifié, finitions soignées, équipements de qualité.
Le projet privilégie les mobilités douces avec :
• Voie réservée aux riverains et stationnement en sous-sol,
• Proximité immédiate des écoles, commerces, équipements sportifs, et transports (bus, tram, vélo en libre-service).
Vous profitez ainsi d'un quartier calme et végétalisé, idéal pour les familles comme pour les jeunes actifs en quête de confort urbain.