Prix
386 731€  (TVA 20%)
340 001€  (TVA 5.5%)
Type
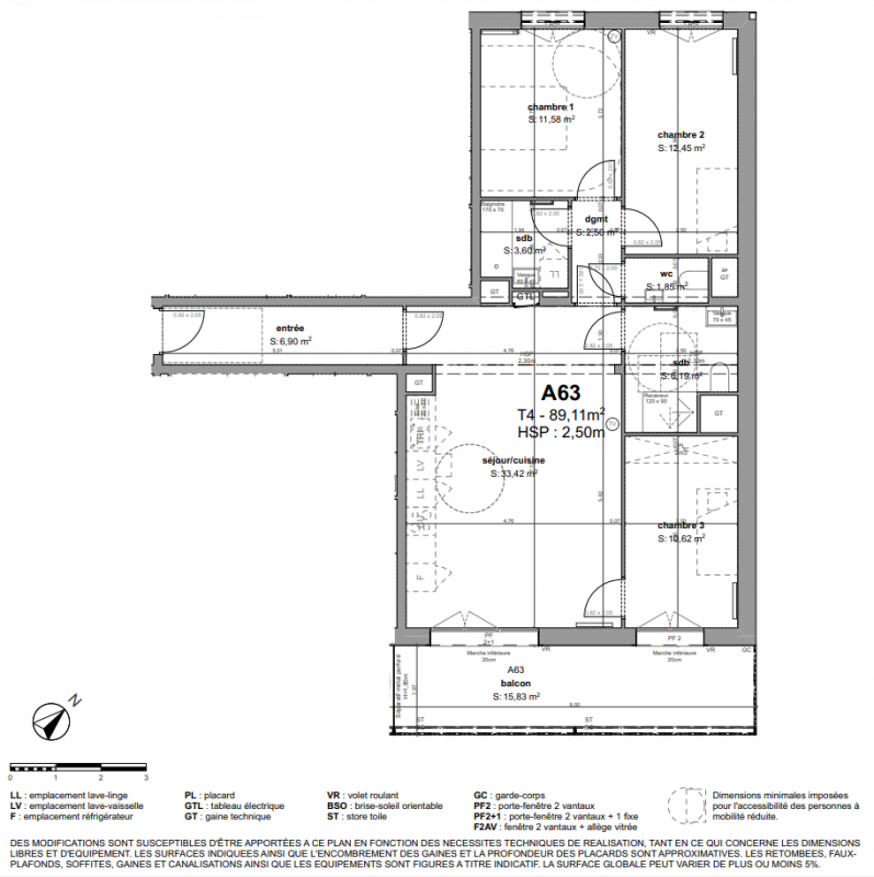
Appt. au 0-RDC
Pièces
T4
Surface
93.17 m²
Exposition
-
Ville
Bordeaux (33000)
Livraison
4ème trimestre 2026
Informations
01 81 80 39 10

Présentation du programme "NEXT STEP"

Nouvelle résidence dans le Quartier Armagnac Sud, située au pied de l'arrêt de tram "Carle Vernet", lignes C et D. Proche du Jardin de l'Ars et du pont Simone Veil, à 5min de la Gare St Jean.
Elle se composera de 66 logements sur 9 étages, allant du studio au 5 pièces, dont certains en duplex.

Autres logements T4 du programme "NEXT STEP"

Disponibilité Prix Genre Pièces Surface Étage
Voir
Disponible
386 998€ Appt. T4 93.16m2 0-RDC
Voir
Disponible
495 000€ Appt. T4 101.88m2 0-RDC
Voir
Disponible
369 668€ Appt. T4 93.16m2 0-RDC
DO NOT CLICK