Prix
83 800€
Type
Appt. au 3ème
Pièces
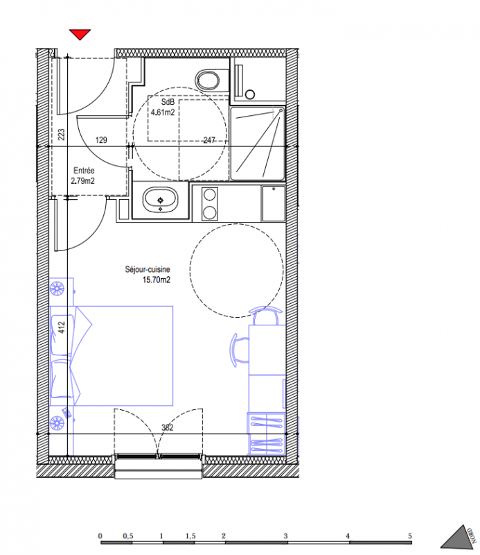
Studio
Surface
23.11 m²
Exposition
Nord
Ville
Bordeaux (33000)
Livraison
1er trimestre 2025
Informations
01 81 80 39 10

Présentation du programme "Bassin À Flot Mer & Golf City Bordeaux - Bassins À Flot"

Descriptif résidenceEmplacement et quartierLa résidence Mer & Golf Bassins à Flot est située au 21 rue de Gironde, au cœur du nouvel éco-quartier des Bassins à Flot, un secteur en pleine transformation, dynamique et prisé. Ce quartier maritime bordelais, à la fois moderne et chargé d'histoire, offre un cadre de vie agréable entre les quais de la Garonne et les infrastructures culturelles majeures. À proximité immédiate :La Cité du Vin, emblème de l'œnotourisme bordelaisLe Musée de la Mer et de la MarineLe Pont Jacques Chaban-Delmas, structure emblématique de la villeCe quartier est également reconnu pour son ambiance urbaine et conviviale, avec de nombreux restaurants, commerces et espaces piétons.AccessibilitéLa résidence bénéficie d'une excellente accessibilité, facilitant les déplacements vers le centre-ville et les principaux points d'intérêt de Bordeaux.À 300 mètres de la ligne B du tramway, qui dessert :Le centre historiqueLa gare TGV Saint-JeanLe parc des expositionsÀ proximité de plusieurs lignes de busAccès rapide à la rocade bordelaise et aux grands axes routiersParking privatif couvert disponible sur place Cette localisation permet de rejoindre facilement les quartiers étudiants, les zones d'affaires et les lieux culturels.Centres d'intérêt à proximitéLa résidence est entourée de nombreux lieux attractifs, parfaits pour les séjours touristiques, professionnels ou étudiants.À quelques minutes à pied :Quai des Marques : centre commercial et promenade au bord de l'eauHalles de Bacalan : marché couvert avec produits locaux et restaurationBase sous-marine : lieu d'expositions artistiques et culturellesParc des Expositions et Stade Matmut Atlantique : pour les événements et spectaclesDescriptif gestionnaireC'est en 1998 que l'entreprise mettre un pied dans le secteur du loisir en se positionnant dans l'un des secteurs les plus performants de l'économie française : la résidence de tourisme. Les établissements de la marque Mer & Golf sont soigneusement situés dans des lieux prestigieux, que ce soit en bord de mer, sur un terrain de golf, face aux pistes de ski, et récemment, trois en milieu urbain, avec une orientation affaires ou étudiants, sous la marque Mer & Golf City. Les résidences et Appart-Hôtels Mer & Golf sont développés par le groupe SEFISO, une holding familiale basée à Bordeaux, qui se décline en deux entités distinctes : SEFISO AQUITAINE : une société spécialisée dans la promotion immobilière, acteur de référence en Aquitaine dep...

Autres logements Studio du programme "Bassin À Flot Mer & Golf City Bordeaux - Bassins À Flot"

Pas de logements disponibles
DO NOT CLICK