284 000€ (TVA 20%)
249 683€ (TVA 5.5%)
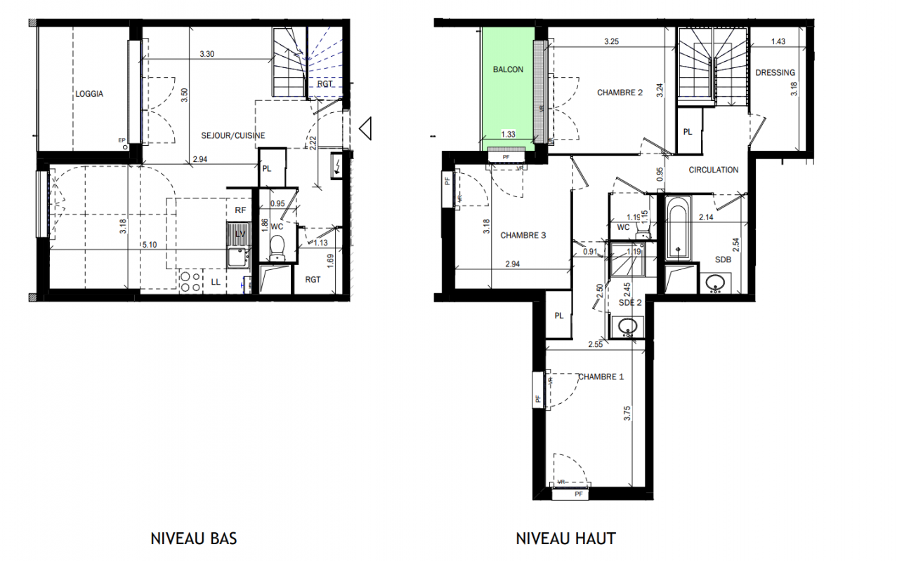
Appt. au 3ème
T4
92.44 m²
Ouest
Bordeaux (33000)
4ème trimestre 2026
01 81 80 39 10
Présentation du programme "Andamio"
Profitez de la TVA 5,5% pour devenir propriétaire au cœur de Bordeaux-Lac
A seulement 4km de l’hypercentre de Bordeaux, au cœur du dynamique quartier Bordeaux-Lac, faites découvrir à vos clients une nouvelle résidence parfaitement implantée dans son environnement à proximité du parc des Expositions et du Palais des Congrès. Au quotidien, vous profitez en plus des nombreuses infrastructures sportives comme le Stade Matmut Atlantique, le vélodrome ou le golf. Agrémenté d’un lac artificiel avec ses plages et ses sports nautiques, ce quartier accueille de vastes espaces verts avec le Parc Floral et le Bois de Bordeaux. Ce cadre de verdure se prolonge dans la résidence grâce à une végétalisation soigneusement orchestrée avec un oasis de frênes, de cerisiers à fleurs et de magnolias. Dans cet espace verdoyant, trois bâtiments intimistes aux façades parées de structure en béton gris clair, de lasure blanche et de bardages de bois, accueillent des appartements du 2 au 4 pièces ouverts sur de beaux espaces extérieurs. Un environnement calme idéal pour investir à Bordeaux !
Autres logements T4 du programme "Andamio"
| Disponibilité | Prix | No | Genre | Pièces | Surface | Étage | Disponibilité | Prix | ||
|---|---|---|---|---|---|---|---|---|---|---|
| Voir | Disponible | 245 000€ | C102 | Appt. | T4 | 79.62m2 | 0-RDC | Disponible | 245 000€ | Voir |
| Voir | Disponible | 260 000€ | C502 | Appt. | T4 | 79.62m2 | 5ème | Disponible | 260 000€ | Voir |
| Voir | Disponible | 297 000€ | D509 | Appt. | T4 | 89.05m2 | 5ème | Disponible | 297 000€ | Voir |
| Voir | Disponible | 287 000€ | D109 | Appt. | T4 | 79.55m2 | 1er | Disponible | 287 000€ | Voir |