475 000€
Maison au 0-RDC
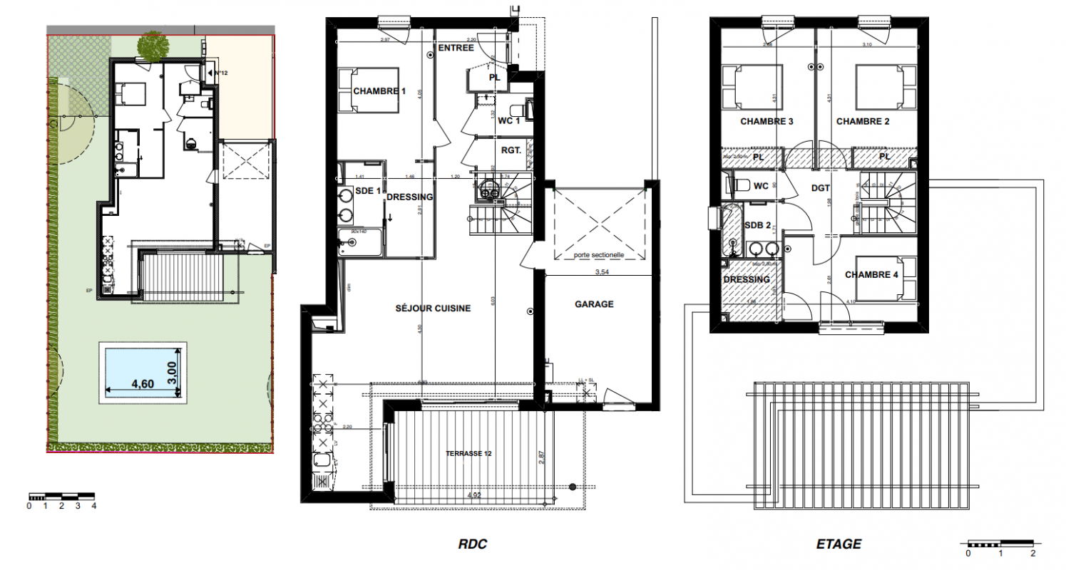
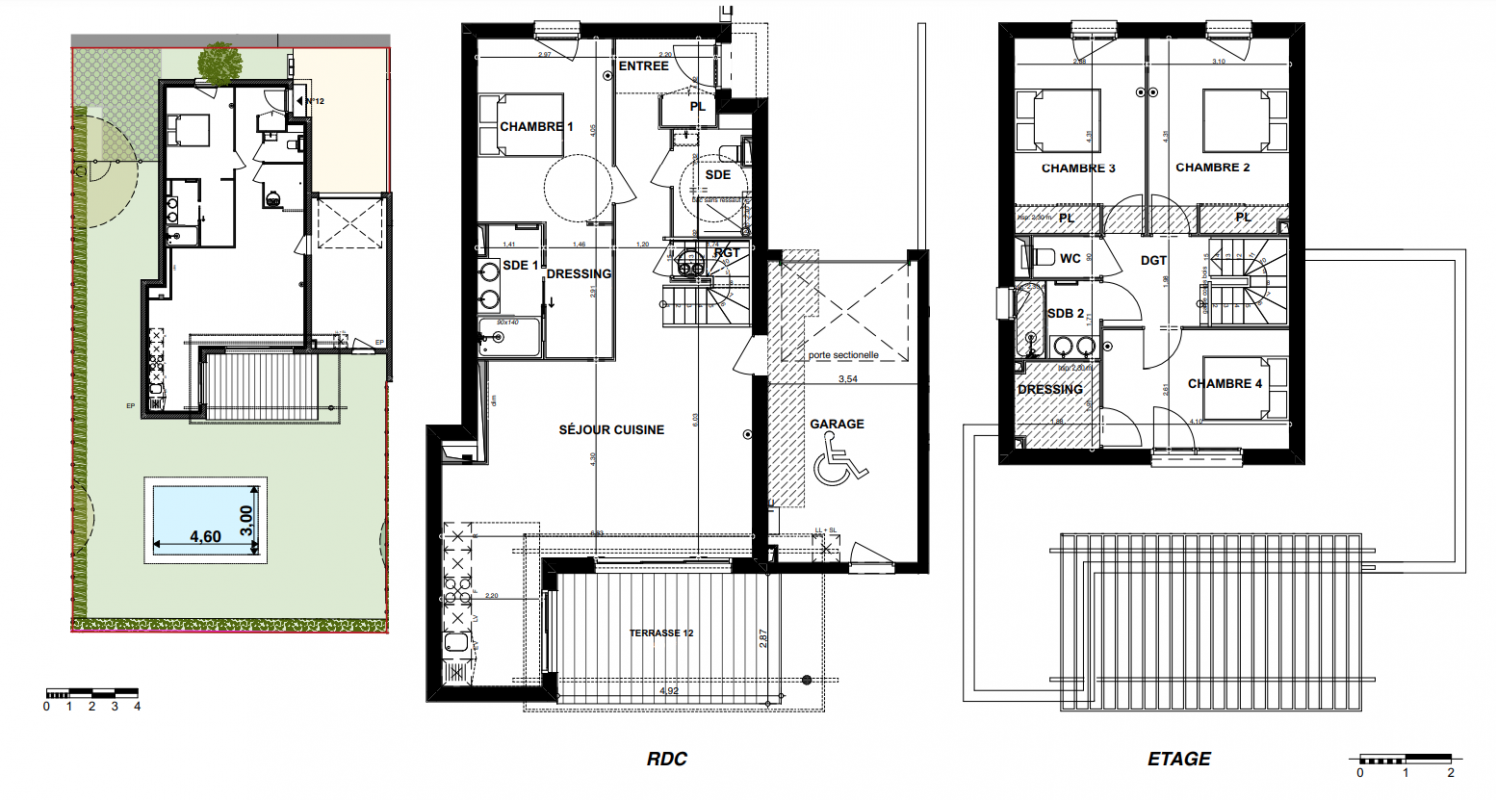
T5
121.1 m²
-
Artigues-près-Bordeaux (33370)
2ème trimestre 2026
01 81 80 39 10
Présentation du programme "VILLAS ANDROMEDE"
[ MAISONS DISPONIBLES IMMÉDIATEMENT ] // ARTIGUES-PRÈS-BORDEAUX - Visitez notre maison décorée et découvrez des villas neuves de 4 pièces, situées à seulement 11 km de Bordeaux. Conçues pour un confort de vie optimal, elles disposent d’un étage, d’un garage, de deux stationnements extérieurs et d’un jardin privatif. Certaines villas bénéficient d’une piscine ou d’un terrain piscinable.
Vous profitez d’un achat clé en main, avec des garanties solides : parfait achèvement, bon fonctionnement et décennale, pour vous installer ou investir en toute sérénité.
Volumes généreux, belle luminosité et cadre de vie familial haut de gamme composent un environnement paisible, aux portes immédiates de Bordeaux.
Contactez dès maintenant nos conseillers Lamotte à BRUGES ou rendez-vous sur notre site LAMOTTE.FR pour en savoir plus !

