Prix
420 000€
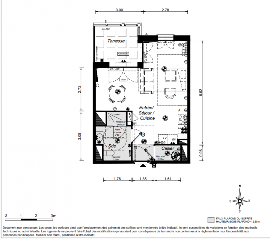
Type
Appt. au 2ème
Pièces
Studio
Surface
36 m²
Exposition
Nord
Ville
Arcachon (33120)
Livraison
2ème trimestre 2027
Informations
01 81 80 39 10

Présentation du programme "COLLECTIONS"

La ville d'Arcachon est renommée pour sa superbe plage de sable fin et son célèbre bassin, elle accueille désormais une nouvelle résidence, COLLECTION. Située au coeur d'Arcachon, à seulement 200 mètres de la plage, la Résidence COLLECTION offre un emplacement idéal vous permettant de tout faire à pied : restaurants, boutiques et autres commodités sont à proximité. Profitez d'une journée à la plage et d'une promenade au coucher du soleil à quelques pas de votre futur chez-vous ! COLLECTION propose des appartements neufs allant du studio au 5 pièces, avec jardin, balcon ou terrasse. Bénéficiez de prestations haut de gamme et d'un suivi personnalisé à l'image de cette résidence. Pour obtenir davantage d'informations sur cette résidence, n'hésitez pas à nous contacter dès maintenant ! Pour toutes informations complémentaires, prenez contact avec nous !

Autres logements Studio du programme "COLLECTIONS"

Pas de logements disponibles
DO NOT CLICK