Prix
269 000€
269 000€
Type
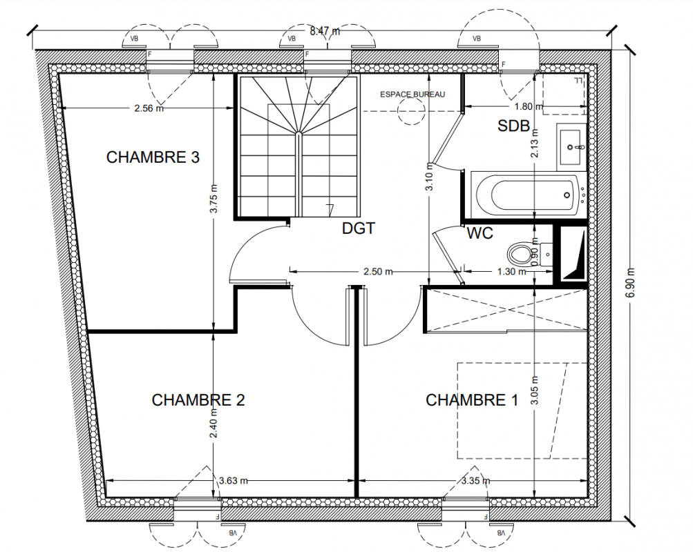
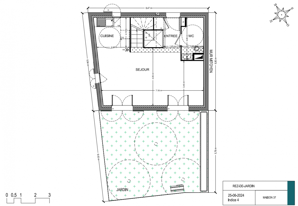
Maison au 1er
Maison au 1er
Pièces
T4
T4
Surface
82.59 m²
82.59 m²
Exposition
Ouest
Ouest
Ville
Saint-Georges-d'Oléron (17190)
Saint-Georges-d'Oléron (17190)
Livraison
2ème trimestre 2026
2ème trimestre 2026
Informations
01 81 80 39 10
01 81 80 39 10
Présentation du programme "Arénaria"
Arénaria, un charmant domaine de maisons neuves signées Kaufman & Broad
Réaliser un investissement patrimonial à Oléron, c’est combiner les avantages à court et à long terme d’un placement stratégique. Les plages, la réserve naturelle, la culture ostréicole, les forêts et les marais salants assurent une valeur patrimoniale indiscutable à votre bien et offrent un cadre attrayant pour les activités récréatives telles que la pêche à pied, les 130 km de pistes cyclables, les courses de catamarans, les compétitions de surf et les expositions de gréements traditionnels.

