Prix
143 900€
Type
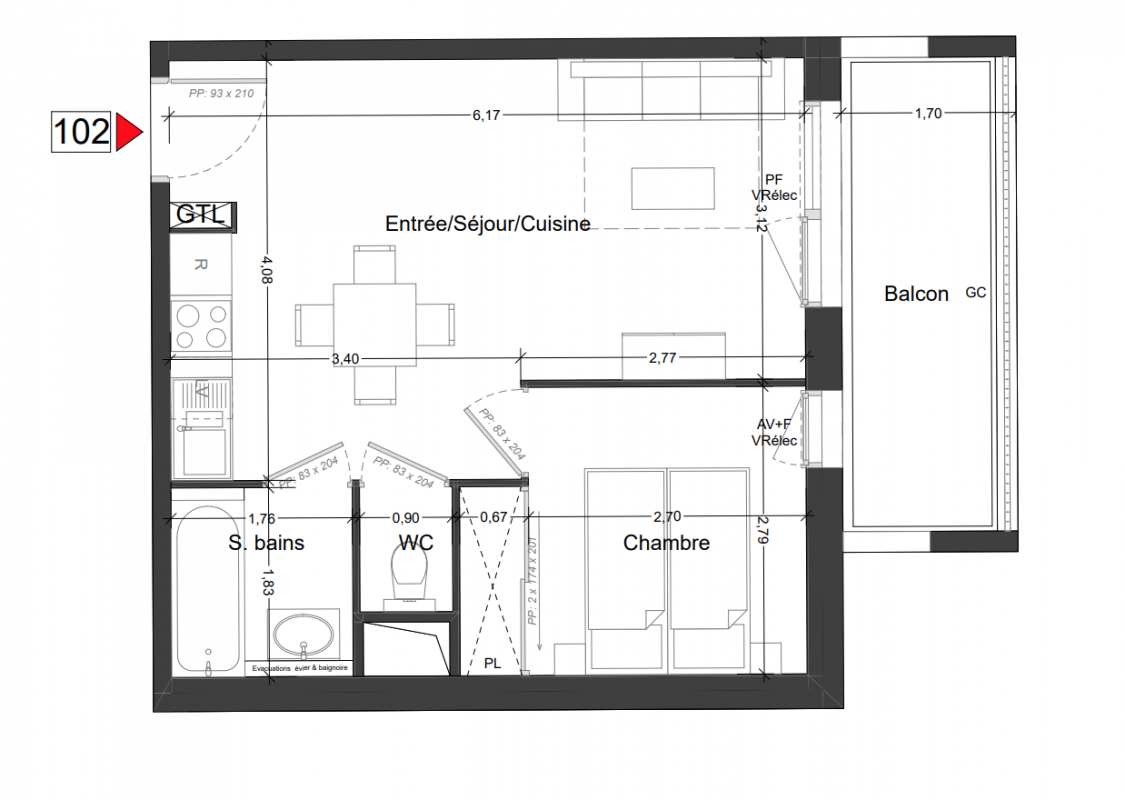
Appt. au 1er
Pièces
T2
Surface
35.06 m²
Exposition
Est
Ville
Royan (17200)
Livraison
1er trimestre 2025
Informations
01 81 80 39 10

Présentation du programme "Résidence Odalys L'orée Du Parc"

Descriptif résidenceUn emplacement exceptionnel à RoyanLa Résidence L’Orée du Parc bénéficie d’une situation rare dans le quartier résidentiel du Parc, l’un des secteurs les plus recherchés de Royan.Située à seulement 150 mètres de la plage de la Grande Conche.À 700 mètres du centre-ville, de ses commerces et du Marché Central. Adresse : 9 avenue du Maréchal Leclerc, au cœur d’un environnement calme et élégant. Cet emplacement confère une attractivité touristique naturelle, idéale pour assurer un taux d’occupation élevé tout au long de l’année.Royan est classée Ville d’Art et d’Histoire, et séduit par son architecture mêlant Art déco, modernisme et patrimoine historiqueUn établissement 4 étoiles moderne et haut de gammeLa résidence propose des prestations premium valorisantes pour les locations :Deux piscines chauffées (intérieure + extérieure). Espace bien-être PAYOT, sauna, hammam, douches sensorielles.Salle de fitness, espaces détente, terrasse privative. Parking couvert, ascenseurs, Wi-Fi.Accès rapide et variéGare SNCF de Royan à quelques minutes du centre-ville (liaison vers Bordeaux, Angoulême, Paris via TER+TGV).Réseau de bus local (arrêt « L’Oasis » à 5 minutes de marche de la résidence).Accès routier simple via l’A10 (sortie Saintes).Centres d’intérêt à proximité immédiatePlage de la Grande Conche à 150 m : l’une des plus belles plages familiales de Charente-Maritime. Promenade du front de mer, activités nautiques (surf, voile, jet-ski, paddle…). Marché Central (site emblématique de Royan) à moins de 10 min à pied.Nombreux restaurants, cafés, boutiques et animations saisonnières.Architecture Belle Époque et église Notre-Dame à 1 km.Casino, thalasso, cinéma, équitation, golf, karting… très accessibles. Accès aux îles d’Oléron, Aix et Ré en excursion. Descriptif gestionnaireMAGORA est un acteur majeur de l’immobilier géré en Europe, issu de l’évolution du groupe Odalys.Le groupe conçoit, développe et exploite des résidences avec services sur l’ensemble de la chaîne de valeur.Il s’appuie sur un portefeuille de marques reconnues et complémentaires :Odalys Vacances est dédiée aux résidences et villages de tourisme.Odalys City et Happy Senior répondent aux besoins de séjours urbains et de seniors autonomes.Odalys Campus développe des résidences étudiantes et des solutions de coliving.Flower Campings et Alpine Resorts adressent l’hôtellerie de plein air et le premium montagne.MAGORA s’appuie sur près de 550 établissements et plus de 1 700 colla...

Autres logements T2 du programme "Résidence Odalys L'orée Du Parc"

Pas de logements disponibles
DO NOT CLICK