Prix
200 750€
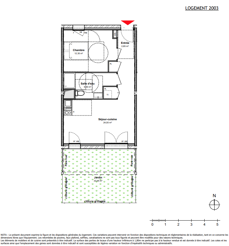
Type
Appt. au 0-RDC
Pièces
T2
Surface
45 m²
Exposition
-
Ville
Périgny (17180)
Livraison
4ème trimestre 2026
Informations
01 81 80 39 10

Présentation du programme "CANALYS"

Autres logements T2 du programme "CANALYS"

Disponibilité Prix Genre Pièces Surface Étage
Voir
Disponible
205 333€ Appt. T2 45m2 0-RDC
DO NOT CLICK