Prix
499 000€
Type
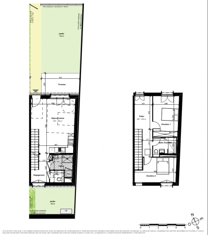
Maison au 0-RDC
Pièces
T3
Surface
81.81 m²
Exposition
Sud
Ville
La Rochelle (17000)
Livraison
4ème trimestre 2028
Informations
01 81 80 39 10

Présentation du programme "LE PARC DE L'ENVOLEE"

Sur la façade Atlantique, La Rochelle séduit par sa douceur de vivre, son dynamisme économique et son patrimoine historique. Au cœur du quartier Notre-Dame, la résidence Le Parc de l’Envolée bénéficie d’une situation privilégiée à seulement 8 min à pied du centre-ville. Ce projet tire profit d’une parcelle de près de 10400 m² pour redonner vie à une ancienne friche entièrement imperméabilisée. Vertueuse, cette réalisation limite l’étalement urbain et contribue à la désartificialisation des sols à la faveur d’un espace végétalisé de plus de 4 220 m², soit plus de 40% de la surface totale. Avec son architecture sobre et épurée Le Parc de l’Envolée s’intègre parfaitement dans ce quartier historique. Son cœur d’îlot végétalisé prisé en centre-ville se compose d’espaces arborés, de cheminements doux et d’un jardin potager.
Dans cet écrin la résidence propose des appartements de standing du studio au 4 pièces et des maisons 3 ou 4 pièces avec un jardin privatif. Tous les appartements visent la certification NF Habitat répondant ainsi à des critères de qualité supérieure. ELIGIBLE PTZ
*lots non éligibles B104, B204 et C1002 C1302

Autres logements T3 du programme "LE PARC DE L'ENVOLEE"

Disponibilité Prix Genre Pièces Surface Étage
Voir
Disponible
419 000€ Appt. T3 77.25m2 0-RDC
DO NOT CLICK