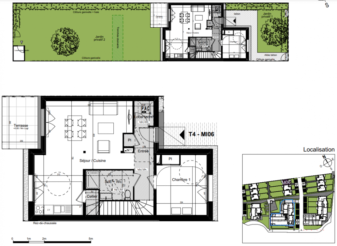
Prix
361 000€
361 000€
Type
Appt. au 0-RDC
Appt. au 0-RDC
Pièces
T4
T4
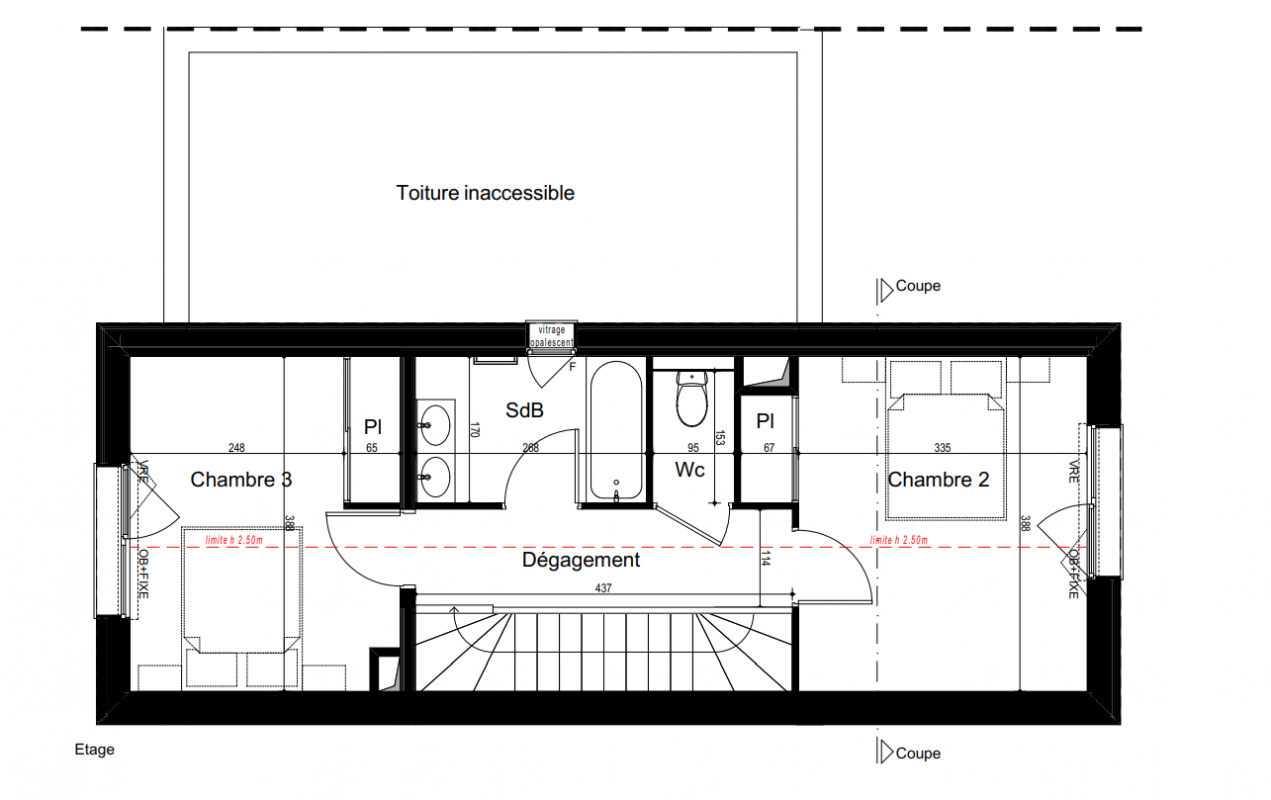
Surface
97.7 m²
97.7 m²
Exposition
Ouest
Ouest
Ville
Mondeville (14120)
Mondeville (14120)
Livraison
1er trimestre 2025
1er trimestre 2025
Informations
01 81 80 39 10
01 81 80 39 10
Présentation du programme "ARMONIA"
LANCEMENT PREVU LE 04/10/22 ! Offre de lancement 1 000 € par pièce pour tout contrat signé jusqu'au 31 octobre 2022

