Prix
212 000€
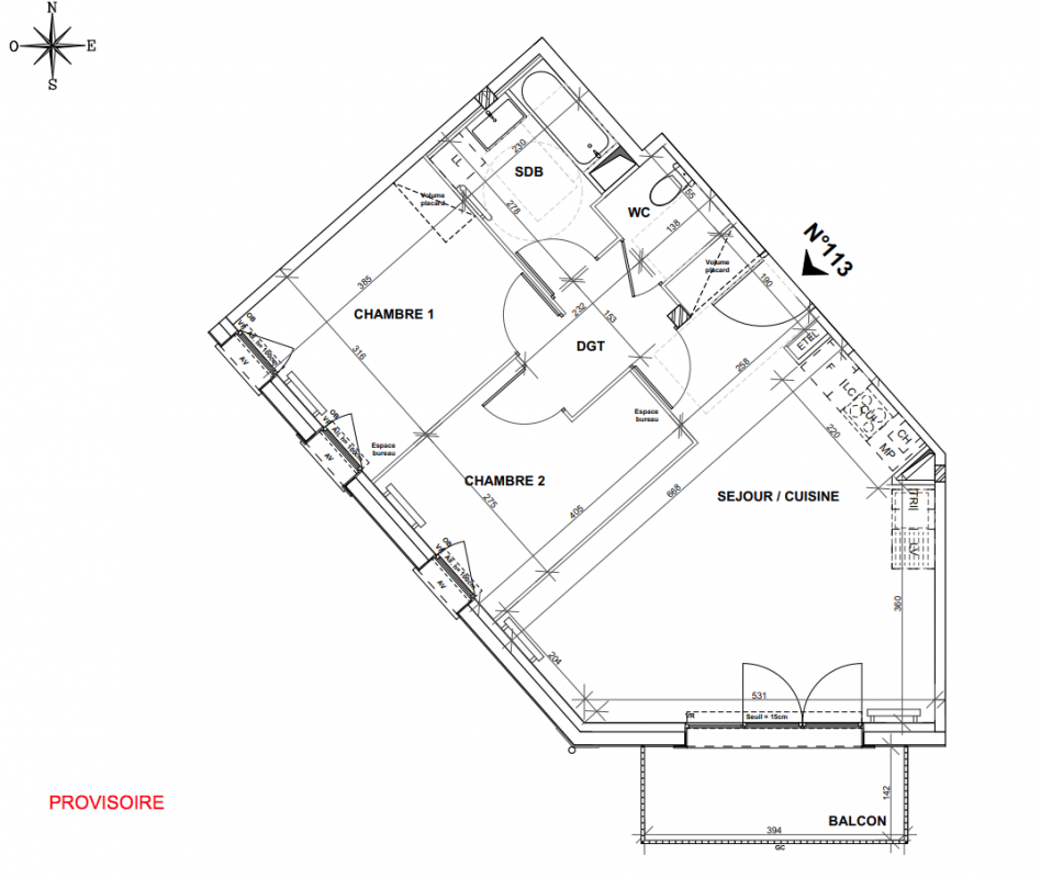
Type
Appt. au 1er
Pièces
T3
Surface
62.87 m²
Exposition
Sud
Ville
Dozulé (14430)
Livraison
4ème trimestre 2027
Informations
01 81 80 39 10

Présentation du programme "Le Clos du Cheval Blanc"

Découvrez en avant-première la nouvelle résidence signée Vianova au coeur d'une charmante ville normande. À Dozulé, devenez propriétaire de votre appartement neuf de 2 ou 3 pièces, prolongé par un balcon ou par un jardin privatif. Cette résidence est située à deux pas du centre-ville, des commerces et des écoles. Un emplacement idéal pour devenir propriétaire de votre logement.

Autres logements T3 du programme "Le Clos du Cheval Blanc"

Disponibilité Prix Genre Pièces Surface Étage
Voir
Disponible
224 000€ Appt. T3 57.36m2 3ème
Voir
Disponible
214 000€ Appt. T3 59.26m2 1er
DO NOT CLICK