Prix
589 000€
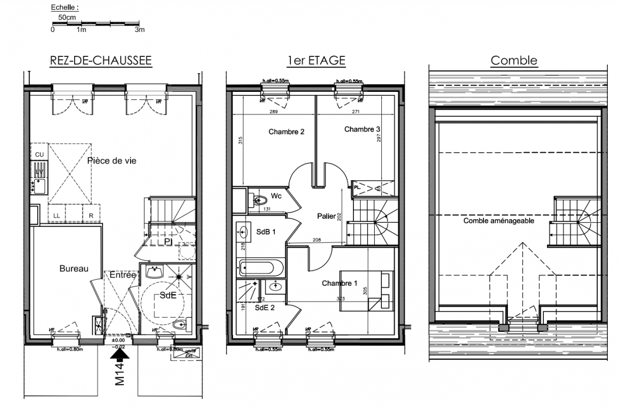
Type
Appt. au 0-RDC
Pièces
T5
Surface
106.44 m²
Exposition
-
Ville
Cabourg (14390)
Livraison
3ème trimestre 2026
Informations
01 81 80 39 10

Présentation du programme "LES COTTAGES DU CHEMIN VERT"

Découvrez en Avant-Première « LES COTTAGES DU CHEMIN VERT » : nouvelle résidence intimiste d'exception à Cabourg ! Profitez d'une situation privilégiée au coeur de la très chic et célèbre station balnéaire de la Côte Fleurie proche de Deauville, à 5 MIN DE LA PLAGE ! BIRDY Promotion vous propose 15 superbes cottages de grand standing déclinés du 3 pièces au 5 pièces +, déployés autour d'un joli coeur d'îlot paysager arboré et fleuri. Afin de prolonger l'harmonie et le confort de tous, chaque cottage possède son propre jardin clos, au calme, accessible depuis le séjour. L'architecture élégante inspirée du charme typique des maisons normandes traditionnelles à colombages, est enrichie par les innovations architecturales et environnementales contemporaines : espaces de vie généreux, baignés de lumière naturelle, logements connectés. La résidence « LES COTTAGES DU CHEMIN VERT » profite de prestations de grand standing, d'accès sécurisés, de places de parkings, et d'un local pour les 2 roues. L'accent est mis sur les performances énergétiques et environnementales : choix des matériaux nobles pour un faible impact écologique, isolations renforcées, ventilation et lumière naturelle avec des logements multi-orientés pour des logements répondants au label RE2020. IDEAL POUR LES FAMILLES : les plages de sable fin, l'éventail des activités sportives : sports nautiques, équitation, golf, tennis, pêche, courses à l'hippodrome, le club enfant. IDEAL POUR TOUS : le Casino, la Thalasso, le Cinéma, le musée La Villa du Temps retrouvé, le port de plaisance de la Divette, le shopping dans le centre-ville avec ses commerces, les restaurants du centre-ville et le célèbre marché. Cabourg recèle de beaux espaces naturels, comme ses Dunes du Cap Cabourg à découvrir ou les Marais de la Dives. Tout est accessible en 5 min (à vélo ou à pied), dans une commune vivante et vibrante aux nombreux évènements et festivals qui réunissent résidents et touristes et animent la station au fil des saisons.

Autres logements T5 du programme "LES COTTAGES DU CHEMIN VERT"

Pas de logements disponibles
DO NOT CLICK