Prix
807 000€
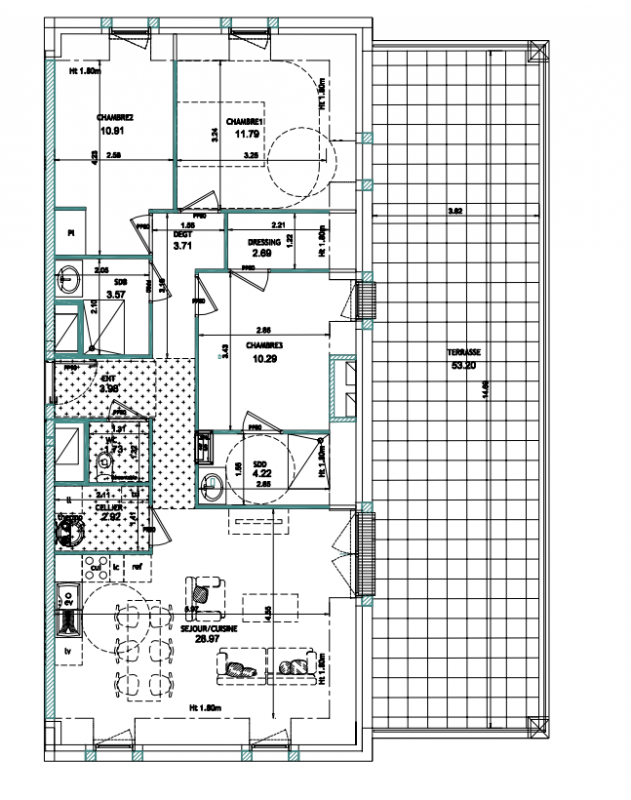
Type
Appt. au 3ème
Pièces
T4
Surface
84.78 m²
Exposition
Nord
Ville
Benerville-sur-Mer (14910)
Livraison
4ème trimestre 2028
Informations
01 81 80 39 10

Présentation du programme "VILLAS GABRIEL 1"

A 2 heures de Paris en voiture, la résidence VILLAS GABRIEL vous accueille dans un cadre exceptionnel du littoral normand, au cœur de la charmante station de Bénerville-sur-Mer. Nichée à 300 m de la plage et à seulement 2 km du centre de Deauville, cette nouvelle réalisation offre tous les avantages d’un investissement pérenne entre mer et prestige. Festival, casino, courses hippiques, shopping et moments de détente sur la célèbre promenade des planches, ici c’est toute l’effervescence de Deauville qui s’offre à votre porte. Située à l’angle de la rue Gaston Gallimard et de la rue Cornier, la résidence VILLAS GABRIEL se pare d’une élégante architecture néo-normande, parfaitement intégrée dans l’environnement de ce quartier calme et verdoyant de Bénerville-sur-Mer. Répartis sur trois bâtiments, les appartements de standing déclinés du studio au 5 pièces présentent des volumes fonctionnels et lumineux, tous prolongés d’un balcon, d’une terrasse ou d’un jardin privatif. Chaque intérieur bénéficie de prestations de confort soignées, associées à des matériaux de qualité et à une isolation thermique et acoustique performante. Au sous-sol, la résidence abrite des parkings privatifs et des locaux à vélos sécurisés.
Que ce soit pour y vivre à l’année, profiter d’une résidence secondaire ou réaliser un investissement locatif saisonnier, ce programme répond aux attentes d’une clientèle exigeante, en quête d’un art de vivre où raffinement et sérénité se conjuguent au quotidien. Soyez parmi les premiers à choisir cette adresse rare de Bénerville-sur-Mer en nous contactant au 01 81 80 39 10.

Autres logements T4 du programme "VILLAS GABRIEL 1"

Disponibilité Prix Genre Pièces Surface Étage
Voir
Disponible
726 000€ Appt. T4 92.29m2
Le bon plan
0-RDC
Voir
Disponible
716 000€ Appt. T4 92.29m2 1er
Voir
Disponible
728 000€ Appt. T4 92.29m2 2ème
Voir
Disponible
776 000€ Appt. T4 95.42m2 3ème
Voir
Disponible
719 000€ Appt. T4 90.8m2 0-RDC
Voir
Disponible
827 000€ Appt. T4 107.61m2 1er
Voir
Disponible
858 000€ Appt. T4 107.61m2 2ème
DO NOT CLICK