Prix
308 000€
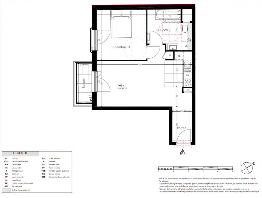
Type
Appt. au 1er
Pièces
T2
Surface
44.3 m²
Exposition
-
Ville
Sartrouville (78500)
Livraison
2ème trimestre 2028
Informations
01 81 80 39 10

Présentation du programme "HORIZON"

DES PRESTATIONS HAUT DE GAMME
POUR UN CONFORT ABSOLU
La résidence HORIZON vous propose des prestations
de haute qualité pour un confort au quotidien. Le
chauffage et l’isolation répondent aux dernières normes énergétiques,
assurant une efficacité optimale et des économies d’énergie.
La sécurité n’est pas en reste avec un accès sécurisé par
vidéophone et badge, ainsi qu’un parking en sous-sol. Les espaces
verts paysagers offrent un véritable havre de paix au
coeur de la résidence, faisant d’HORIZON un lieu de
vie exceptionnel et privilégié.

Autres logements T2 du programme "HORIZON"

Disponibilité Prix Genre Pièces Surface Étage
Voir
Disponible
327 000€ Appt. T2 43.91m2 0-RDC
Voir
Disponible
312 000€ Appt. T2 44.3m2 2ème
Voir
Disponible
299 000€ Appt. T2 45.37m2 3ème
Voir
Disponible
309 000€ Appt. T2 45.37m2 4ème
Voir
Disponible
282 000€ Appt. T2 45.38m2 1er
DO NOT CLICK