Ce lot n’est plus disponible chez VIANOVA ou est vendu.

Vous pouvez revenir dans 24h pour vérifier le stock à jour ou contacter un conseiller Vianova pour vérifier le stock en direct.
Vous pouvez également continuer votre recherche sur notre site « ici ».

Prix
458 767€  (TVA 20%)
403 333€  (TVA 5.5%)
Type
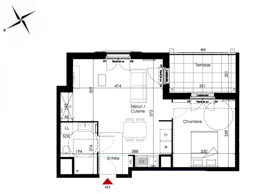
Appt. au 3ème
Pièces
T4
Surface
90 m²
Exposition
Sud-Ouest
Ville
Chambourcy (78240)
Livraison
2ème trimestre 2027
Informations
01 81 80 39 10

Présentation du programme "La Porte de Chambourcy"

Située dans un cadre de vie privilégié, au coeur de la nature, découvrez notre nouvelle réalisation à l'architecture sobre et élégante !Ce domaine arboré et sécurisé se compose d'appartements spacieux, du 2 au 4 pièces, et de belles maisons familiales de 3 et 4 chambres. La plupart des appartements sont prolongés par de beaux espaces extérieurs, et les maisons profitent de jardins privatifs, permettant de profiter de moments en plein air, en toute intimité. Pour un environnement des plus chaleureux, un espace de convivialité est prévu. Faisant écho à la tradition d'arboriculture de Chambourcy, les espaces verts, soigneusement étudiés, seront plantés de diverses essences, dont des pommiers. Cette réalisation profite de la proximité des centres commerciaux Carrefour et Les Vergers de la Plaine, mais aussi des infrastructures scolaires et sportives. Les gares de Saint Germain et Poissy se trouvent quant à elles à moins de 5km, assurant un quotidien des plus confortable. Renseignez-vous dès à présent et profitez du meilleur choix!

Autres logements T4 du programme "La Porte de Chambourcy"

Disponibilité Prix Genre Pièces Surface Étage
Voir
Disponible
477 725€ Appt. T4 91m2 1er
Voir
Disponible
489 098€ Appt. T4 84m2 2ème
DO NOT CLICK