Ce lot n’est plus disponible chez VIANOVA ou est vendu.

Vous pouvez revenir dans 24h pour vérifier le stock à jour ou contacter un conseiller Vianova pour vérifier le stock en direct.
Vous pouvez également continuer votre recherche sur notre site « ici ».

Prix
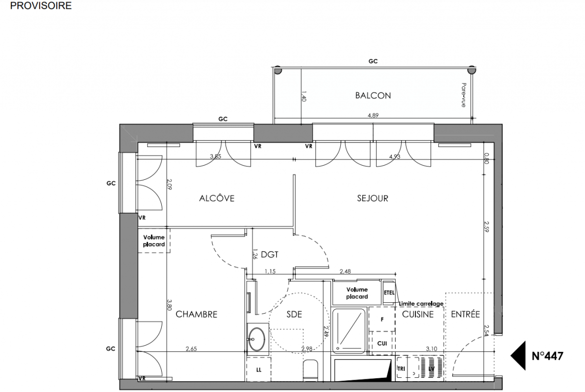
335 545€
Type
Appt. au 4ème
Pièces
T2
Surface
50.24 m²
Exposition
Nord
Ville
Cachan (94230)
Livraison
1er trimestre 2028
Informations
01 81 80 39 10

Présentation du programme "PROMENADE CAMPUS"

Cette nouvelle adresse au cœur du campus historique de l'ENS, vous propose une résidence unique à l'architecture de qualité dont l'utilisation du bois en façade. Un riche projet paysager est également déployé pour permettre une parfaite intégration du projet dans son environnement existant. Les appartements neufs, du studio au 5 pièces sont pour la plupart prolongés par un espace extérieur privatif : balcon, terrase ou jardin. Eligible à la TVA réduite, cette résidence neuve est également disponible avec la solution Vianova Access, permettant de devenir propriétaire sans apport, et avec des mensualités proches de celles d’un loyer.

Autres logements T2 du programme "PROMENADE CAMPUS"

Disponibilité Prix Genre Pièces Surface Étage
Voir
Disponible
351 469€ Appt. T2 50.24m2 5ème
Voir
Disponible
293 460€ Appt. T2 37.11m2 4ème
DO NOT CLICK