Prix
606 256€
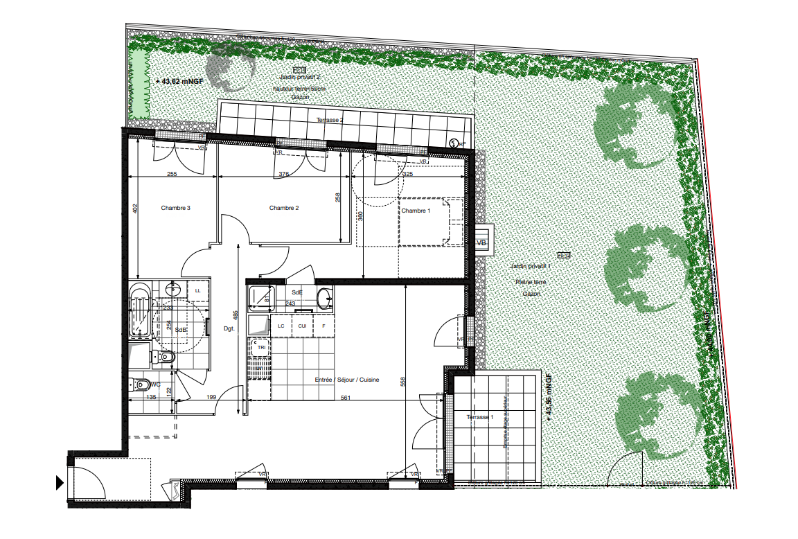
Type
Appt. au 0-RDC
Pièces
T4
Surface
88.82 m²
Exposition
-
Ville
Arcueil (94110)
Livraison
2ème trimestre 2026
Informations
01 81 80 39 10

Présentation du programme "L'ECLAT"


Projet de hall et plan de décoration des parties communes signés par l’architecte.
Stationnements en sous-sol.
Local 2 roues aménagé et sécurisé.
Jardin d’agrément en cœur d’îlot.
Raccordement au réseau de chaleur urbain de la ville pour le chauffage et la production d’eau chaude. Isolation phonique et thermique renforcée (RE2020).
Système oscillo-battant sur les fenêtres des appartements situés en rez-de-chaussée.
Menuiseries extérieures équipées de volets roulants motorisés.
Ascenseur desservant l’ensemble des niveaux avec commande sécurisée depuis/vers les sous-sol par système VIGIK.
Résidence fermée et entièrement clôturée.

Autres logements T4 du programme "L'ECLAT"

Disponibilité Prix Genre Pièces Surface Étage
Voir
Disponible
600 569€ Appt. T4 88.82m2 2ème
Voir
Disponible
585 782€ Appt. T4 88.82m2 2ème
DO NOT CLICK