Prix
275 000€
275 000€
Type
Appt. au 2ème
Appt. au 2ème
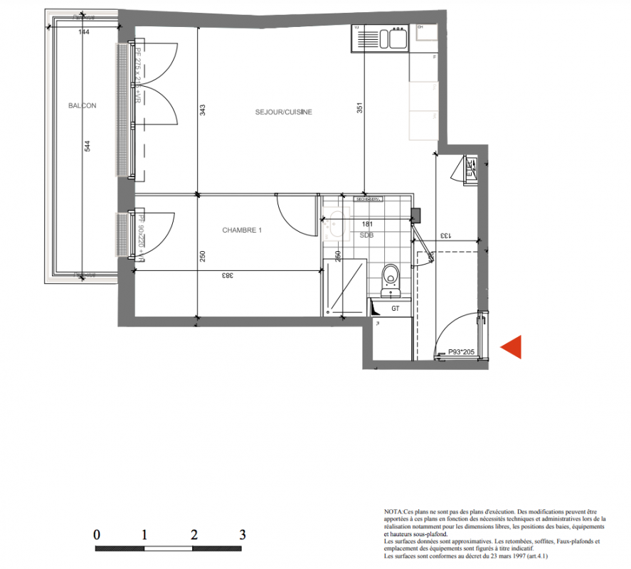
Pièces
T2
T2
Surface
41.25 m²
41.25 m²
Exposition
-
-
Ville
Taverny (95150)
Taverny (95150)
Livraison
4ème trimestre 2026
4ème trimestre 2026
Informations
01 81 80 39 10
01 81 80 39 10
Présentation du programme "Harmony"
Découvrez Harmony, la nouvelle adresse située en coeur de ville de Taverny. Devenez propriétaire aux meilleures conditions pour habiter ou investir.