Prix
659 716€ (TVA 20%)
580 000€ (TVA 5.5%)
659 716€ (TVA 20%)
580 000€ (TVA 5.5%)
Type
Appt. au 8ème
Appt. au 8ème
Pièces
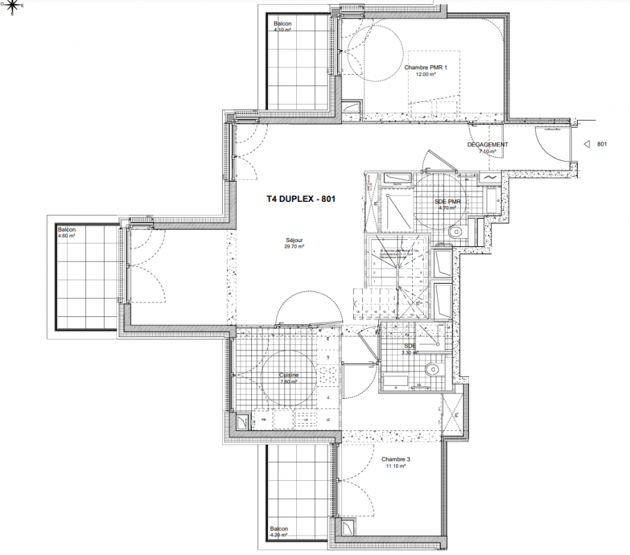
T4
T4
Surface
90 m²
90 m²
Exposition
Ouest
Ouest
Ville
Saint-Ouen (93400)
Saint-Ouen (93400)
Livraison
4ème trimestre 2025
4ème trimestre 2025
Informations
01 81 80 39 10
01 81 80 39 10
Présentation du programme "SO HERITAGE COMMERCE"
De nouveaux logements neufs déjà livrés et bientôt disponibles au coeur du quartier le plus emblématique de Saint-Ouen-sur-Seine : le Village des Athlètes. Vues imprenables sur la Seine, espaces extérieurs privatifs, TVA réduite : une opportunité rare pour habiter ou investir dans un cadre unique. Contactez dès à présent notre équipe commerciale pour être informé de la mise en vente. * Prix donnés à titre indicatif et susceptibles d'évoluer jusqu'à la date officielle de lancement du programme immobilier. Pour toutes informations complémentaires, prenez contact avec nous !

