Ce lot n’est plus disponible chez VIANOVA ou est vendu.
Vous pouvez revenir dans 24h pour vérifier le stock à jour ou contacter un conseiller Vianova pour vérifier le stock en direct.
Vous pouvez également continuer votre recherche sur notre site « ici ».
437 000€ (TVA 20%)
384 196€ (TVA 5.5%)
Appt. au 1er
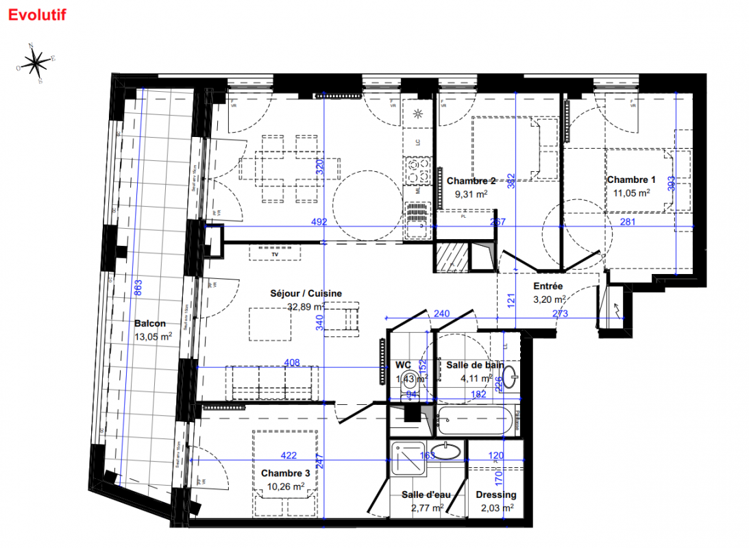
T4
77.1 m²
-
Romainville (93230)
4ème trimestre 2028
01 81 80 39 10
Présentation du programme "Coteau"
Rooj-Coteau à Romainville, un programme immobilier de deux résidences neuves au coeur du renouveau de la ZAC de l'Horloge.
Logements lumineux, double orientation, coeur d'îlot végétalisé et grands espaces extérieurs privatifs et vues dégagées.
La résidence tend vers le seuil 2028 de la réglementation environnementale 2020, ce qui signifie des logements qui consomment moins d'énergie : factures énergétiques plus faibles et logement plus performant dans le temps.
Performances environnementales élevées, matériaux durables, toitures végétalisées.
Dans un environnement naturel exceptionnel : Canal de l'Ourcq, Corniche des forts, futur jardin du Coteau Groupe scolaire neuf au pied du programme, place Jenny Alpha, marché des Bas-Pays, maison de santé, commerces de proximité sur la rue Gaston Roussel. À 10 min à pied du métro Ligne 5, et future arrivée du T Zen 3. Mobilités douces autour du Grand Chemin, nouvelle artère reliant la Corniche des Forts au canal de l'Ourcq. Un emplacement stratégique, dans un quartier en pleine transformation où la vie culturelle n'est pas en reste : Le Pavillon, médiathèque Romain-Rolland, l'annexe, le FRAC Ile-de-France...
Habiter le Coteau, c'est vivre entre ville et nature.
Autres logements T4 du programme "Coteau"
| Disponibilité | Prix | No | Genre | Pièces | Surface | Étage | Disponibilité | Prix | ||
|---|---|---|---|---|---|---|---|---|---|---|
| Voir | Archivé | 396 000€ | E1 B303 | Appt. | T4 | 78.22m2 | 3ème | Archivé | 396 000€ | Voir |
| Voir | Archivé | 438 000€ | E1 B106 | Appt. | T4 | 79.12m2 | 1er | Archivé | 438 000€ | Voir |
| Voir | Archivé | 448 000€ | E1 B206 | Appt. | T4 | 79.12m2 | 2ème | Archivé | 448 000€ | Voir |
| Voir | Archivé | 489 000€ | E5 B44 | Appt. | T4 | 79.2m2 | 0-RDC | Archivé | 489 000€ | Voir |
| Voir | Archivé | 487 000€ | E5 B16 | Appt. | T4 | 79.5m2 | 0-RDC | Archivé | 487 000€ | Voir |
| Voir | Archivé | 504 000€ | E5 B45 | Appt. | T4 | 81.2m2 | 0-RDC | Archivé | 504 000€ | Voir |
| Voir | Archivé | 489 000€ | E1 A403 | Appt. | T4 | 83.2m2 | 4ème | Archivé | 489 000€ | Voir |
| Voir | Archivé | 489 000€ | E1 A402 | Appt. | T4 | 83.5m2 | 4ème | Archivé | 489 000€ | Voir |
| Voir | Archivé | 490 000€ | E1 A304 | Appt. | T4 | 85.3m2 | 3ème | Archivé | 490 000€ | Voir |
| Voir | Archivé | 504 000€ | E5 B37 | Appt. | T4 | 86.3m2 | 0-RDC | Archivé | 504 000€ | Voir |
| Voir | Archivé | 505 000€ | E1 A502 | Appt. | T4 | 86.8m2 | 5ème | Archivé | 505 000€ | Voir |