Prix
223 000€  (TVA 20%)
196 054€  (TVA 5.5%)
Type
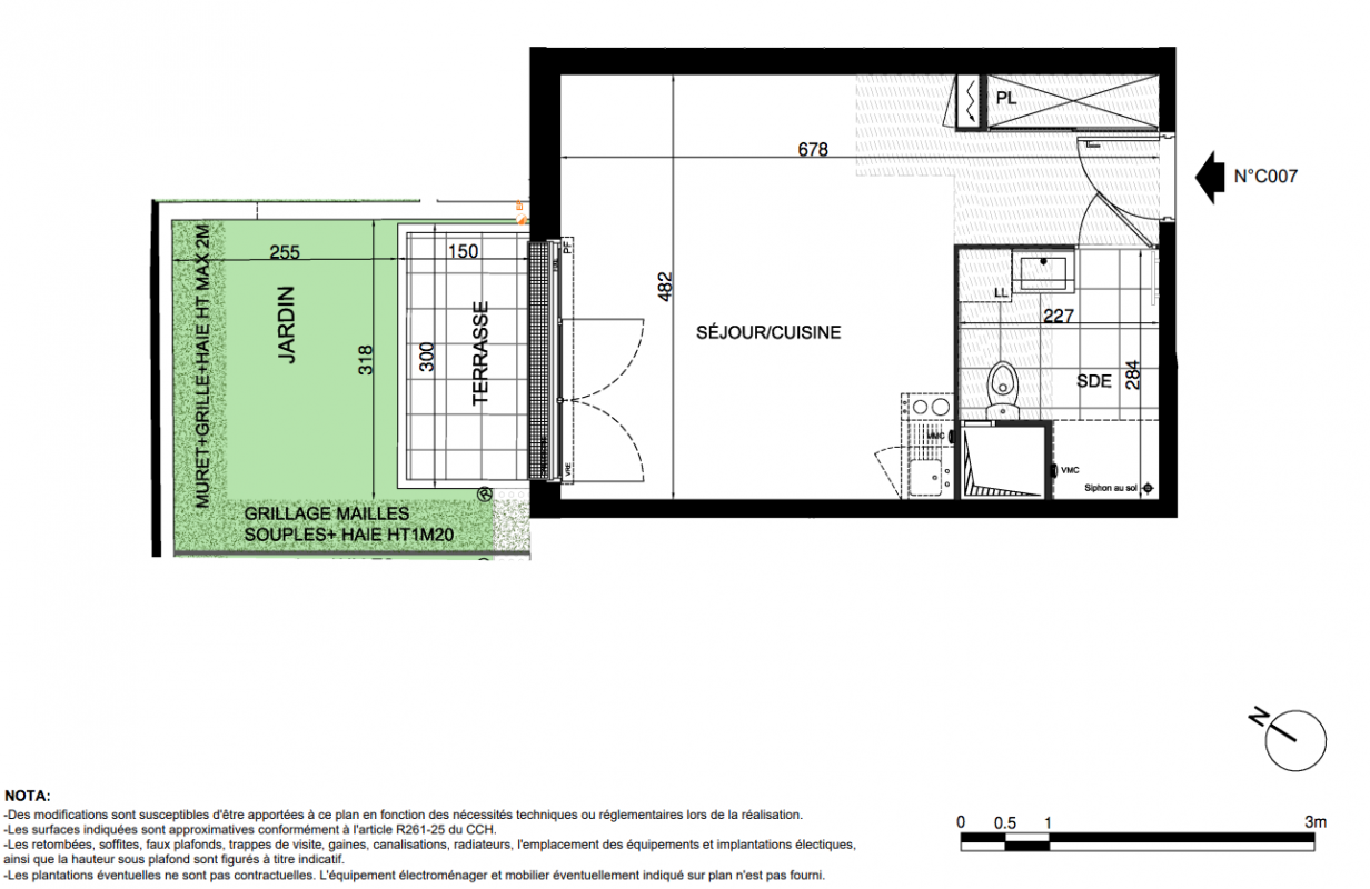
Appt. au 0-RDC
Pièces
Studio
Surface
31 m²
Exposition
Nord-Ouest
Ville
Neuilly-Plaisance (93360)
Livraison
2ème trimestre 2028
Informations
01 81 80 39 10

Présentation du programme "Plaisancia"

Devenez enfin propriétaire grâce à la TVA réduite ! Découvrez nos appartements du studio au 5 pièces avec des espaces extérieurs exceptionnels aux derniers niveaux ! Une résidence qui bénéficie d'un emplacement de qualité aux portes de Paris, à proximité du RER A et du futur métro ligne 15 et qui profite des commerces de la rue Maréchal Foch, accessibles à seulement 5 minutes à pied. Entre ambiance résidentielle et qualité de vie, Neuilly-Plaisance séduit par son atmosphère pavillonnaire, ses espaces verts généreux et ses nombreux équipements : cinéma, théâtre, piscine, bibliothèque, mais aussi de vastes lieux de promenade comme le parc des Côteaux d'Avron ou les bords de Marne. Une opportunité à ne pas manquer pour devenir propriétaire dans une commune dynamique et agréable. * Voir conditions sur notre site internet. Pour toutes informations complémentaires, prenez contact avec nous !

Autres logements Studio du programme "Plaisancia"

Disponibilité Prix Genre Pièces Surface Étage
Voir
Disponible
244 000€ Appt. Studio 32m2 4ème
Voir
Disponible
250 000€ Appt. Studio 31m2 3ème
DO NOT CLICK