Prix
231 000€  (TVA 20%)
211 750€  (TVA 10%)
Type
Appt. au 3ème
Pièces
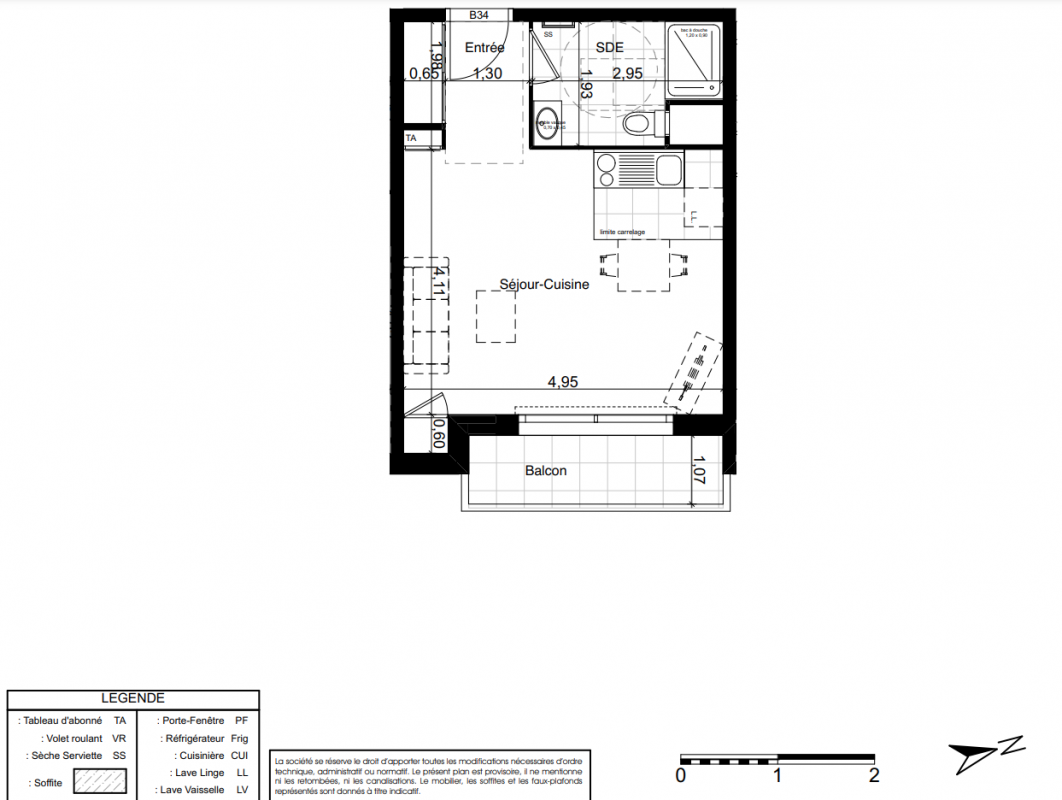
Studio
Surface
29.42 m²
Exposition
-
Ville
Neuilly-Plaisance (93360)
Livraison
1er trimestre 2028
Informations
01 81 80 39 10

Présentation du programme "Iris"

- Appartements du studio au 3 pièces
- Surfaces généreuses prolongées d'une terrasse‐jardin ou d'un balcon
- Résidence intimiste de 3 niveaux
- Architecture cossue aux matériaux nobles et pérennes
- Adresse résidentielle et centrale
- Emplacement proche des commerces et services du quotidien et de structures culturelles, sportives, de loisir, éducatives, de santé...

Autres logements Studio du programme "Iris"

Disponibilité Prix Genre Pièces Surface Étage
Voir
Disponible
215 000€ Appt. Studio 27.14m2 0-RDC
Voir
Disponible
233 000€ Appt. Studio 30.21m2 0-RDC
DO NOT CLICK