Prix
482 750€
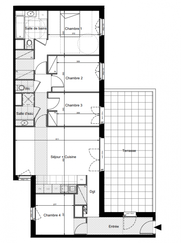
Type
Appt. au 4ème
Pièces
T5
Surface
94 m²
Exposition
-
Ville
Le Blanc-Mesnil (93150)
Livraison
2ème trimestre 2027
Informations
01 81 80 39 10

Présentation du programme "NEXIS"

La Résidence
 
La résidence "NEXIS" est une adresse élégante et contemporaine idéalement située au cœur du Blanc-Mesnil, sur la dynamique avenue du 8 mai 1945. Ce programme immobilier neuf propose des logements de standing conçus pour répondre aux besoins des familles, des jeunes actifs et des investisseurs.
À seulement 10 km de Paris, la résidence bénéficie d'appartements du studio au 5 pièces à proximité immédiate des commerces, écoles, équipements culturels et espaces verts qui font du Blanc-Mesnil une ville en plein essor.

Les atouts 



Des appartements lumineux et bien agencés, avec des prestations modernes et de qualité
Des balcons, terrasses ou jardins privatifs pour chaque logement
Des espaces extérieurs
Espaces communs soignés et verdoyants pour un environnement calme et familial
Résidence sécurisée avec digicode et vidéophone
Parkings privatifs en sous-sol



A proximité 


RER : Ligne B
Bus : Lignes : 148, 151, 152, 247, 251, 346 et 350

Autres logements T5 du programme "NEXIS"

Disponibilité Prix Genre Pièces Surface Étage
Voir
Disponible
450 000€ Appt. T5 88.7m2 6ème
Voir
Disponible
462 750€ Appt. T5 92.5m2 6ème
DO NOT CLICK