215 750€
Appt. au 6ème
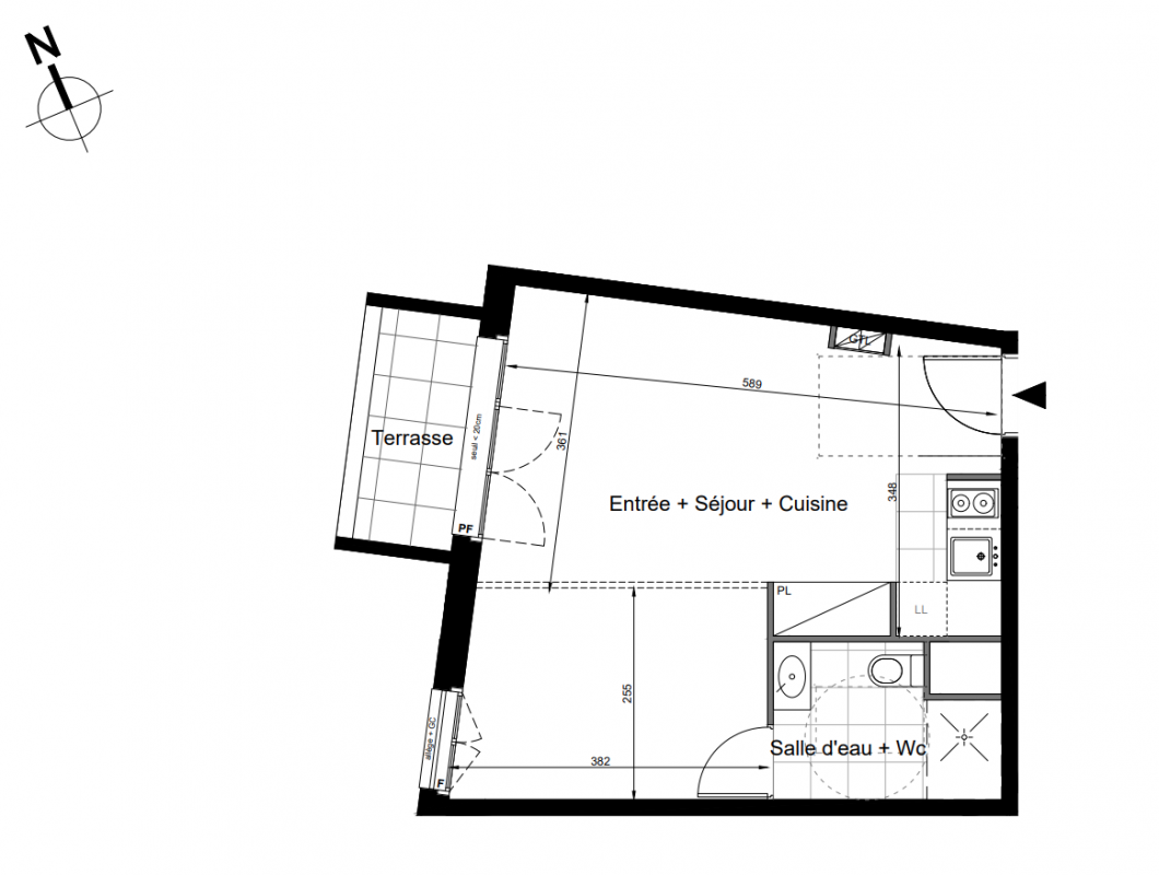
Studio
35.4 m²
-
Le Blanc-Mesnil (93150)
2ème trimestre 2027
01 81 80 39 10
Présentation du programme "NEXIS"
La Résidence
La résidence "NEXIS" est une adresse élégante et contemporaine idéalement située au cœur du Blanc-Mesnil, sur la dynamique avenue du 8 mai 1945. Ce programme immobilier neuf propose des logements de standing conçus pour répondre aux besoins des familles, des jeunes actifs et des investisseurs.
À seulement 10 km de Paris, la résidence bénéficie d'appartements du studio au 5 pièces à proximité immédiate des commerces, écoles, équipements culturels et espaces verts qui font du Blanc-Mesnil une ville en plein essor.
Les atouts
Des appartements lumineux et bien agencés, avec des prestations modernes et de qualité
Des balcons, terrasses ou jardins privatifs pour chaque logement
Des espaces extérieurs
Espaces communs soignés et verdoyants pour un environnement calme et familial
Résidence sécurisée avec digicode et vidéophone
Parkings privatifs en sous-sol
A proximité
RER : Ligne B
Bus : Lignes : 148, 151, 152, 247, 251, 346 et 350
Autres logements Studio du programme "NEXIS"
| Disponibilité | Prix | No | Genre | Pièces | Surface | Étage | Disponibilité | Prix | ||
|---|---|---|---|---|---|---|---|---|---|---|
| Voir | Disponible | 224 750€ | A402 | Appt. | Studio | 39.8m2 | 4ème | Disponible | 224 750€ | Voir |
| Voir | Disponible | 229 750€ | A502 | Appt. | Studio | 39.8m2 | 5ème | Disponible | 229 750€ | Voir |
| Voir | Optionné | 207 750€ | B102 | Appt. | Studio | 36.3m2 | 1er | Optionné Mais pas encore vendu 😉 | 207 750€ | Voir |
| Voir | Optionné | 182 750€ | B104 | Appt. | Studio | 26.2m2 | 1er | Optionné Mais pas encore vendu 😉 | 182 750€ | Voir |