Prix
241 137€  (TVA 20%)
212 000€  (TVA 5.5%)
Type
Appt. au 3ème
Pièces
-
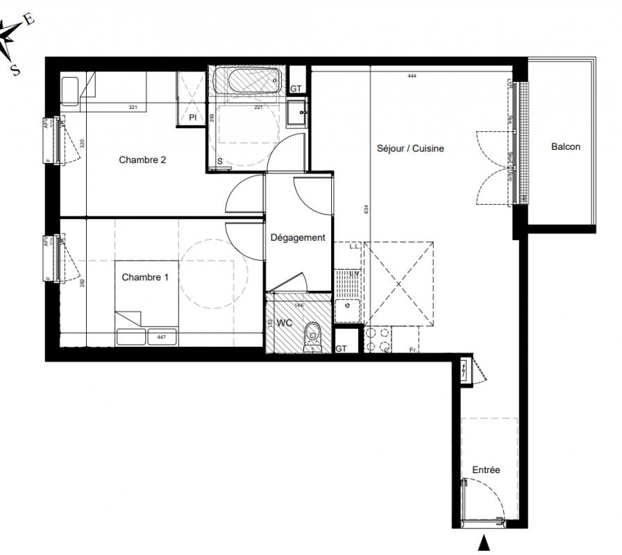
Surface
65.2 m²
Exposition
-
Ville
Drancy (93700)
Livraison
3ème trimestre 2027
Informations
01 81 80 39 10

Présentation du programme "L'essentiel"

FRAIS DE NOTAIRE OFFERTS - TVA 5,5% - BRS RESIDENCE L'essentiel A DRANCY (93)
RENDEZ-VOUS DANS NOTRE ESPACE DE VENTE : 133 rue Sadi Carnot à Drancy.

Découvrez L'essentiel, notre nouvelle résidence idéalement située dans une commune dynamique et pleine de charme. Drancy bénéficie d'une position stratégique à mi-chemin entre le coeur de Paris et l'aéroport Charles-de-Gaulle.

VOTRE CADRE DE VIE :

- Plus de 33 hectares d'espaces verts dont le Parc de Ladoucette.

- Ville labellisée "Ville Fleurie" depuis 2008 pour un environnement agréable.

- Patrimoine riche avec le Château de Ladoucette et la Cité de la Muette.

TRANSPORTS ET CONNECTIVITÉ :

- RER B (Gare de Drancy) : rejoignez Paris Gare du Nord en seulement 15 minutes.

- Desserte complète par bus et tramway pour vos trajets quotidiens.

- Futur Grand Paris Express pour une valorisation de votre patrimoine.

AVANTAGES FINANCIERS :

- Accession à la propriété via le dispositif BRS (Bail Réel Solidaire).

- TVA réduite à 5,5% pour l'achat de votre résidence principale.

- FRAIS DE NOTAIRE OFFERTS sur votre projet immobilier.

Contactez nos conseillers pour découvrir les plans et les conditions d'éligibilité. *Les prix tiennent compte de la TVA réduite. Voir conditions auprès de nos conseillers.

Autres logements - du programme "L'essentiel"

Disponibilité Prix Genre Pièces Surface Étage
Voir
Disponible
235 450€ Appt. - 65.2m2 2ème
DO NOT CLICK