Ce lot n’est plus disponible chez VIANOVA ou est vendu.

Vous pouvez revenir dans 24h pour vérifier le stock à jour ou contacter un conseiller Vianova pour vérifier le stock en direct.
Vous pouvez également continuer votre recherche sur notre site « ici ».

Prix
450 900€  (TVA 20%)
396 416€  (TVA 5.5%)
Type
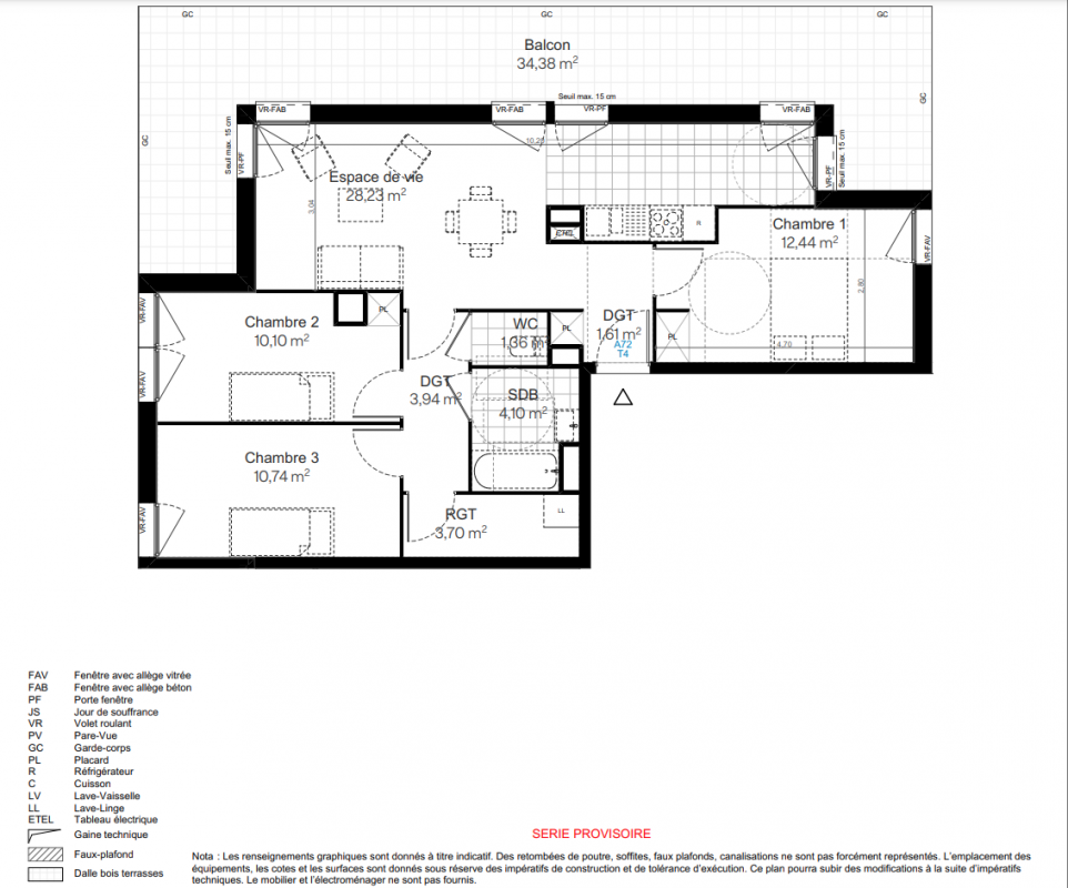
Appt. au 7ème
Pièces
T4
Surface
76.22 m²
Exposition
-
Ville
Aubervilliers (93300)
Livraison
2ème trimestre 2028
Informations
01 81 80 39 10

Présentation du programme "Stand Up"

[NOUVEAU DISPOSITIF JEANBRUN : réduisez vos impôts et augmentez votre rentabilité !]

AU COEUR DU FORT D'AUBERVILLIERS ! Découvrez notre nouvelle résidence à AUBERVILLIERS (93) composée d'appartements du studio au 5 pièces aux prestations soignées. Vous profitez d'une adresse d'exception proche du métro, des établissements scolaires et des commerces.

Autres logements T4 du programme "Stand Up"

Disponibilité Prix Genre Pièces Surface Étage
Voir
Disponible
421 400€ Appt. T4 78.58m2
Le bon plan
0-RDC
DO NOT CLICK