Prix
201 666€
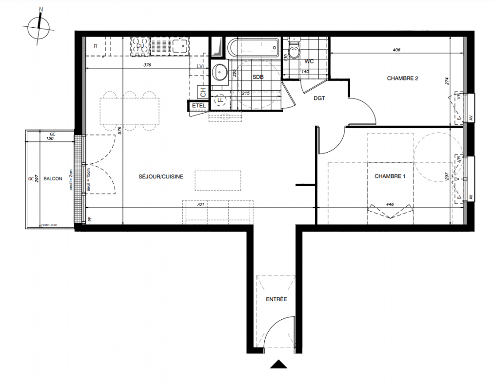
Type
Appt. au 1er
Pièces
T3
Surface
69 m²
Exposition
Ouest
Ville
Provins (77160)
Livraison
2ème trimestre 2026
Informations
01 81 80 39 10

Présentation du programme "RUELLE AUX VIGNES"

Autres logements T3 du programme "RUELLE AUX VIGNES"

Disponibilité Prix Genre Pièces Surface Étage
Voir
Disponible
207 166€ Appt. T3 67m2 2ème
Voir
Optionné
198 000€ Appt. T3 71m2
Le bon plan
1er
Voir
Disponible
203 500€ Appt. T3 65m2 1er
Voir
Disponible
203 500€ Appt. T3 66m2 1er
Voir
Disponible
207 166€ Appt. T3 65m2 2ème
Voir
Disponible
201 666€ Appt. T3 71m2 2ème
DO NOT CLICK