535 800€
- €
1 181€
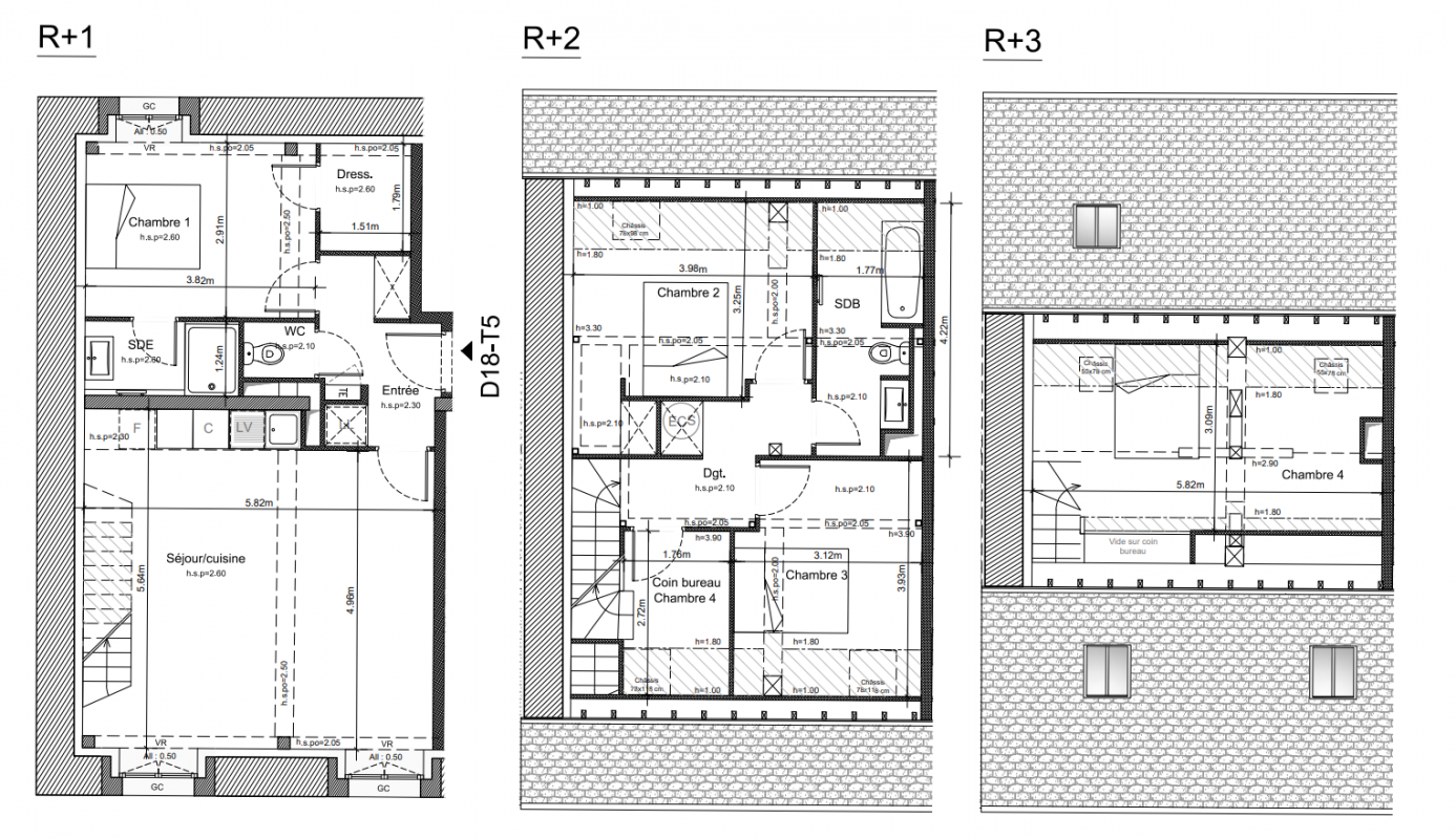
Type
Appt. au 1er
Pièces
T5
Surface
97.25 m²
Exposition
-
Ville
Chessy (77700)
Livraison
2ème trimestre 2026
Informations
01 81 80 39 10

Présentation du programme "LA FERME DE CHESSY VEFA"

A Marne-la-Vallée-Chessy, Vianova et Histoire & Patrimoine vous dévoilent un secret bien gardé : La ferme de Chessy. Un lieu jalousement conservé pendant des années en plein cœur d’un parc classé.

Découvrez sans plus tarder ce havre de paix composé d'appartements, du studio à la maison 5 pièces, alliant confort moderne et charme de l'ancien.




LES ATOUTS DU PROGRAMME :

Le charme de l'ancien aux avantages du Pinel
Des extérieurs
Après 6 ans de Pinel, exploitation possible en location meublée avec forte demande locative

Autres logements T5 du programme "LA FERME DE CHESSY VEFA"

Pas de logements disponibles
DO NOT CLICK