786 000€
Appt. au 4ème
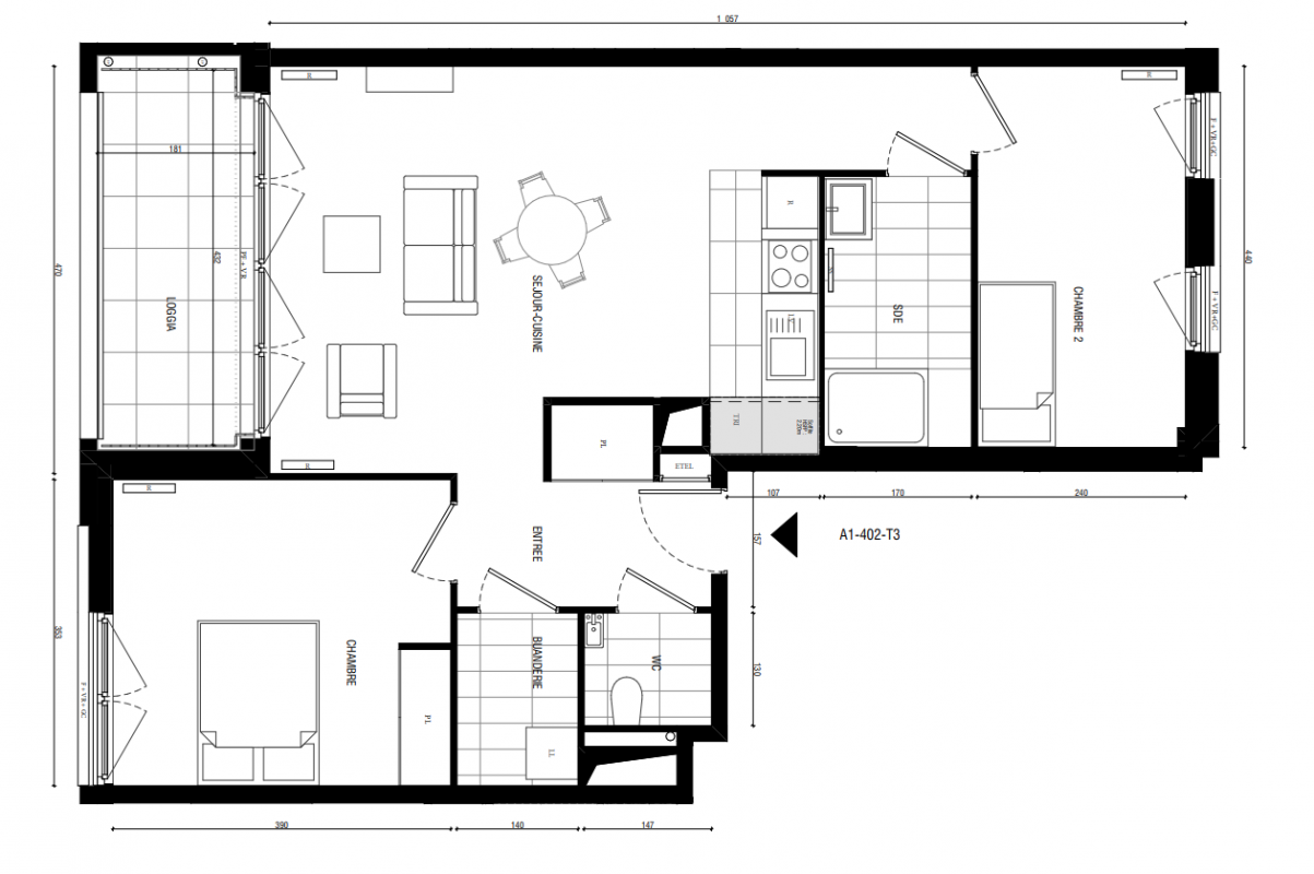
T3
70.2 m²
-
Paris 18ème (75018)
1er trimestre 2025
01 81 80 39 10
Présentation du programme "Les Terrasses Championnet"
Idéalement située à quelques minutes de marche des stations de métro Jules Joffrin (ligne 12) et Simplon (ligne 4), cette adresse d'exception s'inscrit au cœur d’un quartier animé et prisé, à proximité immédiate des commerces, des établissements scolaires et des lieux culturels. Affirmant une signature architecturale contemporaine et raffinée, la résidence se distingue par l’élégance de ses façades lumineuses, l’audace de ses lignes et l’harmonie de ses volumes en cascades, attirant ainsi tous les regards. Chaque appartement, du studio au cinq-pièces en duplex, a été conçu avec le plus grand soin afin d’optimiser l’espace, la luminosité et le confort. Certains logements bénéficient de balcons, loggias ou vastes terrasses, véritables havres de sérénité propices à des instants privilégiés. Grâce à ses prestations haut de gamme et à son design résolument contemporain, Les Terrasses Championnet représentent une opportunité rare d’accéder à la propriété au sein de Paris intra-muros.