Prix
779 000€
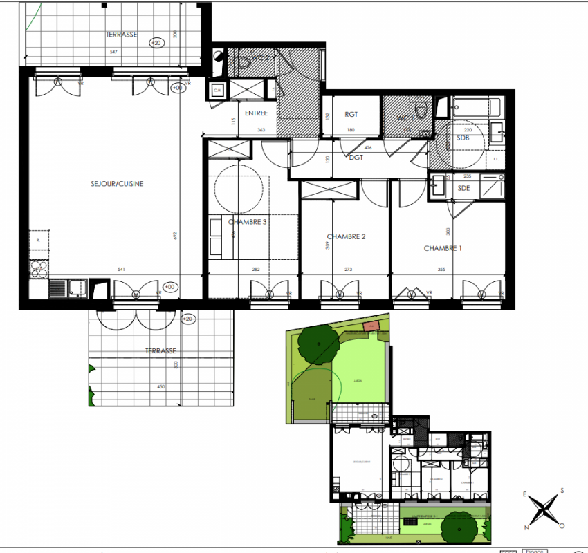
Type
Appt. au 0-RDC
Pièces
T4
Surface
96.94 m²
Exposition
-
Ville
Sèvres (92310)
Livraison
2ème trimestre 2027
Informations
01 81 80 39 10

Présentation du programme "Pavillon Mansart"

Élégance, nature et bien-être au cœur de Sèvres
Situé entre Boulogne-Billancourt et Meudon, à 15 minutes en Transilien de la gare Montparnasse, Sèvres figure parmi les communes les plus agréables à vivre du sud-ouest parisien. La grande qualité de ses écoles, commerces et équipements culturels en fait l'une des destinations privilégiées des familles, nombreuses à y rechercher un logement.Avec cette adresse prestigieuse, à proximité de la forêt de Meudon, cette nouvelle résidence offre un véritable havre de paix à quelques pas du dynamisme urbain. Que ce soit pour un investissement patrimonial ou locatif, vide ou meublé, un achat immobilier à Sèvres représente toujours une valeur sûre dans un portefeuille patrimonial.*Source : Google Maps

Autres logements T4 du programme "Pavillon Mansart"

Disponibilité Prix Genre Pièces Surface Étage
Voir
Disponible
730 000€ Appt. T4 88.61m2 0-RDC
DO NOT CLICK